Houzz Tours
House Tours
Houzz Pro Tours
Houzz Tour: A Victorian House Brought Impressively Up to Date
A cohesive layout and warm colours combined with energy-efficiency measures thoroughly modernise this terraced home
Looking for a masterclass in how to bring a typical Victorian terrace into the 21st century? This might just be it. The three-storey home in Bristol was overhauled from top to toe, across 10 months, with every floor redesigned and rebuilt to some extent to make best use of space. That’s not all. The owners were determined not only to improve the feel and flow of their home, but to make it thermally efficient, too, with an air source heat pump, new windows and excellent insulation.
The challenge was taken up by Mégane Leeding and the team at Ivywell Interiors, who designed this home to reflect the owners’ tastes, backgrounds and commitment to a sustainable, efficient lifestyle while staying on budget.
The challenge was taken up by Mégane Leeding and the team at Ivywell Interiors, who designed this home to reflect the owners’ tastes, backgrounds and commitment to a sustainable, efficient lifestyle while staying on budget.
The kitchen before its transformation.
Originally, the units were concentrated at the far end of the room, with dead space in the middle.
Planning to revamp your home? It’s easy to find and hire interior designers through Houzz.
Planning to revamp your home? It’s easy to find and hire interior designers through Houzz.
Now, the kitchen has doors at the rear, where the units were previously. New windows down the length of the room flood the space with light, and cabinets with an integrated sink and appliances line each side.
There’s also a breakfast bar, which flows seamlessly from the worktop. “The owners were keen to include the breakfast bar, imagining a future when it might just be the two of them living here,” Mégane says. “They wanted somewhere to have an easy-going meal in the evening. In fact, now all four of them eat here all the time. It’s just such a nice space, totally transformed.”
The kitchen was made bespoke by a kitchen company from birch ply with oak doors.
Polished quartz worktop, Marmobello.
There’s also a breakfast bar, which flows seamlessly from the worktop. “The owners were keen to include the breakfast bar, imagining a future when it might just be the two of them living here,” Mégane says. “They wanted somewhere to have an easy-going meal in the evening. In fact, now all four of them eat here all the time. It’s just such a nice space, totally transformed.”
The kitchen was made bespoke by a kitchen company from birch ply with oak doors.
Polished quartz worktop, Marmobello.
“Creating a rear side extension would have been straightforward, to make a large, open-plan kitchen,” Mégane says, “but the owners didn’t want that. With their kids going to move out some time, they just didn’t need a bigger kitchen.”
In addition, one of the owners is a landscape architect and wanted to include some outside storage space for his tools and equipment. It’s visible through the window and has a green roof.
The owners had already bought the pendant light and were keen to include it. “It gave us a theme for the space,” Mégane says. “When we positioned the breakfast bar, we had to make sure it fitted beneath the light. Then, as you can see right through to the front of the house from here, we had to line up the ceiling lights in the dining and living spaces with it.”
Pendant light, Heal’s.
In addition, one of the owners is a landscape architect and wanted to include some outside storage space for his tools and equipment. It’s visible through the window and has a green roof.
The owners had already bought the pendant light and were keen to include it. “It gave us a theme for the space,” Mégane says. “When we positioned the breakfast bar, we had to make sure it fitted beneath the light. Then, as you can see right through to the front of the house from here, we had to line up the ceiling lights in the dining and living spaces with it.”
Pendant light, Heal’s.
The dining room was originally a separate space, which the owners didn’t use very often.
Now, it’s at the heart of a layout that flows and feels cohesive. From here, you can access both the kitchen and the living room (see next photo). A chimney breast was removed to free up space for a sideboard, and a large fixed window was added to let light pour in.
Nelson pendant light, Hay.
Nelson pendant light, Hay.
The wall dividing the living and dining room was removed.
The door into the living room from the hall was also blocked up. “There were dado rails, which we took out, as they divided up the room,” Mégane says, “but we kept the ceiling roses, which are really nice.”
The walls are painted in a mellow white to create a relaxed, neutral backdrop.
Walls painted in Slipper Satin, Farrow & Ball. Nelson pendant light, Hay.
The walls are painted in a mellow white to create a relaxed, neutral backdrop.
Walls painted in Slipper Satin, Farrow & Ball. Nelson pendant light, Hay.
One wall of the dining area is covered with a textured paper. “I was so happy to have a client confident enough to use it!” Mégane laughs. “The owners were not afraid of colour, it just needed to be the right tones. This paper is our way of blending her Indian heritage and his love of nature. We’ve combined these things throughout, using fabrics and papers with rich texture, nature motifs and warm colours.”
Golfe Du Bengale wallpaper, Casamance.
Golfe Du Bengale wallpaper, Casamance.
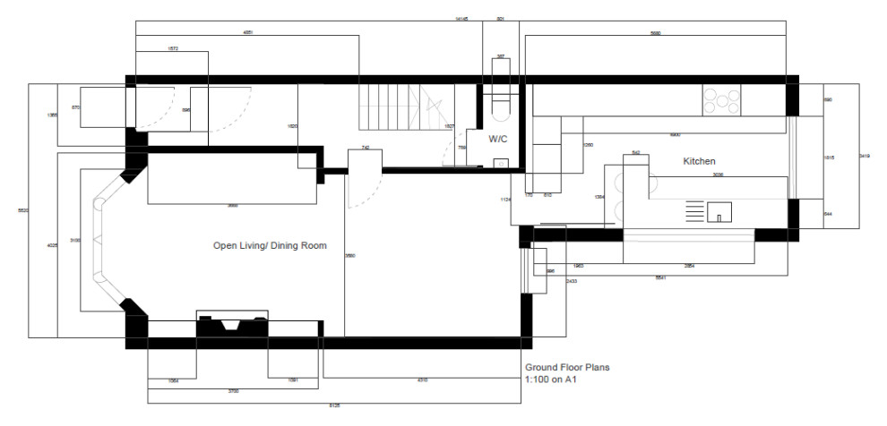
This plan of the ground floor makes clear how opened-up it is now.
Before the work, there was a gas fire in the living room that had been condemned.
The old fireplace and gas fire have now been removed and the space left open. The shelving and storage in the alcoves were built by the same company that made the kitchen. “It created that cohesive look the owners wanted,” Mégane says.
New windows were fitted in several rooms in the house, but in here, the owners had the original sash windows restrung. Mégane then further insulated them by adding curtains in a heavy lined velvet.
The old fireplace and gas fire have now been removed and the space left open. The shelving and storage in the alcoves were built by the same company that made the kitchen. “It created that cohesive look the owners wanted,” Mégane says.
New windows were fitted in several rooms in the house, but in here, the owners had the original sash windows restrung. Mégane then further insulated them by adding curtains in a heavy lined velvet.
Mégane had a bespoke sofa made, designed specifically to suit one of the owners. “He is very tall, so we created a sofa that was deep and comfortable with him in mind,” she says. It was also made to complement existing furniture.
The two matching ottoman cubes are joined by a table that can slide off, so they can be used as additional seating. The cubes and sofa were made just half a mile away at a local Bristol company, a cost-effective decision that also reduced the furniture’s carbon footprint.
The two matching ottoman cubes are joined by a table that can slide off, so they can be used as additional seating. The cubes and sofa were made just half a mile away at a local Bristol company, a cost-effective decision that also reduced the furniture’s carbon footprint.
The loft had already been converted into a bedroom and bathroom. Mégane suggested leaving the chimney breast in place to save the expense of removing it, but building a wardrobe to one side of it and adding some shelving across the front.
The far wall was pushed back a bit to make space for a roof light. Some clothes storage with rails was built into the eaves.
The original loft bathroom.
The owners weren’t bothered about having a bath in the loft bathroom, so instead Mégane opted for a big shower and a good-sized basin.
Basin, Roca.
Basin, Roca.
Everyone in the family, including the two grown-up children who use the bedrooms on the middle floor, enjoy colour. In this room, Mégane picked a bold coral to add vibrancy, then balanced it with an otherwise neutral scheme.
“We saved a bit of budget in these bedrooms by using existing furniture and focusing on the flooring, colour scheme and curtains,” she says. “Offering value for money is core for us.”
The original sash windows were restrung and curtains with a thermal and blackout lining hung to further insulate them.
Wall painted in Raspberry Blush, Benjamin Moore.
“We saved a bit of budget in these bedrooms by using existing furniture and focusing on the flooring, colour scheme and curtains,” she says. “Offering value for money is core for us.”
The original sash windows were restrung and curtains with a thermal and blackout lining hung to further insulate them.
Wall painted in Raspberry Blush, Benjamin Moore.
Another bedroom features a similar wall of colour, teamed with neutrals, but in more of a terracotta hue. The flooring throughout this level is LVT.
Wall painted in Tuscan Red, Little Greene.
Wall painted in Tuscan Red, Little Greene.
The family bathroom on the middle floor as it looked before.
The same bathroom now. The space is quite small – around 5 sq m. “The owners had had plans drawn up by an architect before we came on board, which had extended the room, borrowing space from the bedroom behind,” Mégane explains. “But these plans had the water tank where the shower is now. We managed to move it up to the loft, which freed up space and meant we could fit in a bath that didn’t go past the window, keeping the lines clean.”
Hoxton Peach tiles; Jagger Light Grey tiles, all Mandarin Stone.
Hoxton Peach tiles; Jagger Light Grey tiles, all Mandarin Stone.
Plans showing the middle floor.
“The owners wanted their home to feel warm the second you came through the front door,” says Mégane, who picked a sandy-toned neutral for the hall walls. “We refreshed the simple pine staircase by painting it and added a stair runner,” she says.
The original door to the kitchen was blocked off to create a cloakroom, just seen at the end of the corridor.
Unsurprisingly, the owners are delighted with the top-to-toe transformation of their house. “We absolutely love our newly finished home. Mégane [and the team] took our taste and style into consideration to come up with a design that also added sophistication, coordination throughout the house, and a real wow factor. They ensured we stayed within our budget, too.”
Walls painted in Oxford Stone, Farrow & Ball.
Tell us…
What do you like about Mégane’s renovation? Share your thoughts in the Comments.
The original door to the kitchen was blocked off to create a cloakroom, just seen at the end of the corridor.
Unsurprisingly, the owners are delighted with the top-to-toe transformation of their house. “We absolutely love our newly finished home. Mégane [and the team] took our taste and style into consideration to come up with a design that also added sophistication, coordination throughout the house, and a real wow factor. They ensured we stayed within our budget, too.”
Walls painted in Oxford Stone, Farrow & Ball.
Tell us…
What do you like about Mégane’s renovation? Share your thoughts in the Comments.






























Who lives here? A couple and their two grown-up children
Location Bishopston, Bristol
Property A Victorian terraced house
Size Four bedrooms and two bathrooms
Designer Mégane Leeding of Ivywell Interiors
Project year 2023
Photos by William Goddard
Designer Mégane Leeding remembers her first visit to the house. “It was very gloomy, like a lot of Victorian homes, and it felt dark and cold,” she says. “The owners wanted a contemporary, minimalist aesthetic that was also warm, with no clutter and great continuity throughout the floors.”
At this early, concept stage, Mégane used Houzz Pro tools to create walk-through and dollhouse views of the proposed changes. “It allows us to share our plans in a way that feels more about lifestyle. It’s a great, simple, quick starting point, showing the owners the various options and how they fit.”
The owners also wanted to make the house efficient, and Mégane collaborated with heating engineers and specialists to plan this aspect. Now, a heat pump feeds underfloor heating and efficient radiators. The exterior has been covered with insulated render and new windows have been fitted to thermally insulate the house. Inside, lined curtains ensure no draughts sneak in.