Room Tour: One Simple Move Unlocks a Beautiful, Flowing Home
An elegant design has created cosy, distinct, yet connected rooms in a once open-plan space
Sometimes, it’s the seemingly simple alterations that are the game-changers. In this Victorian semi in north London, removing one wall and building another has, the owners say, been “life-changing”.
Architect Johanna Ahrberg Jackson of Ahrberg Jackson Design was initially shown a long, relatively narrow room and rough plans for a side-return extension, but the design she came up with exceeded expectations, cleverly creating cosy areas and masses of much-needed storage.
Read on to see how her thoughtful plans transformed this family home.
Architect Johanna Ahrberg Jackson of Ahrberg Jackson Design was initially shown a long, relatively narrow room and rough plans for a side-return extension, but the design she came up with exceeded expectations, cleverly creating cosy areas and masses of much-needed storage.
Read on to see how her thoughtful plans transformed this family home.
Johanna’s seemingly simple floor plan changes – removing the wall to extend left into the side return, then building the wall to the right to create a boot room that also helps to section off the living area at the rear – have changed the flow and created a practical and cosy broken-plan space.
“It’s a tale of shifting walls, because that tiny intervention makes such a big difference to how the owners are able to use their home,” Johanna says. “Rather than opening up, I started with open-plan and carved up the space into something more useable and proportionate.”
The new patio doors, designed by Johanna, echo the originals in the living room, but in a modern way. “How do you take something that’s more ornate, which is appropriate in timber, and translate that into a steel door, where you don’t really have curves,” she says.
“We took inspiration from the timber doors and did a stylised version, so [they echo the originals in] everything from the bottom pane being solid to there being some glazing bars, but not evenly spaced,” she says.
Engineered oak flooring helps to unify the spaces. “We took up the entire existing subfloor and insulated and relaid the floor, plus there’s now underfloor heating throughout,” Johanna says.
European Oak engineered flooring in Finish 902, Wood Floors & Accessories.
“It’s a tale of shifting walls, because that tiny intervention makes such a big difference to how the owners are able to use their home,” Johanna says. “Rather than opening up, I started with open-plan and carved up the space into something more useable and proportionate.”
The new patio doors, designed by Johanna, echo the originals in the living room, but in a modern way. “How do you take something that’s more ornate, which is appropriate in timber, and translate that into a steel door, where you don’t really have curves,” she says.
“We took inspiration from the timber doors and did a stylised version, so [they echo the originals in] everything from the bottom pane being solid to there being some glazing bars, but not evenly spaced,” she says.
Engineered oak flooring helps to unify the spaces. “We took up the entire existing subfloor and insulated and relaid the floor, plus there’s now underfloor heating throughout,” Johanna says.
European Oak engineered flooring in Finish 902, Wood Floors & Accessories.
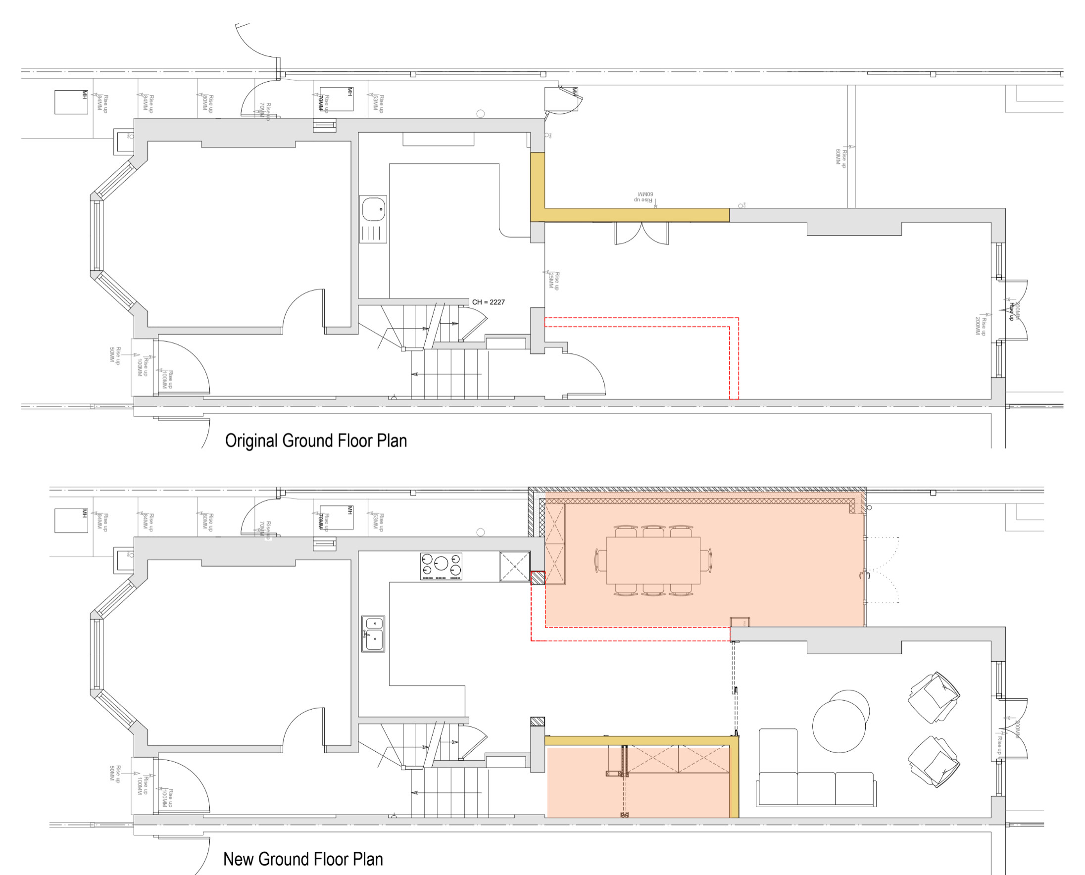
While the side extension has made a huge difference, the real game-changer is the boot room, seen here at the bottom of the new plan behind the living room. “[The family] didn’t have much storage before, but now they can put their clothes and shoes and bags away while still having a beautiful space,” Johanna says.
Looking at the before and after plans here, you can see how she removed an L-shaped piece of wall (marked in yellow on the top plan) and built an L-shaped wall of the same size (marked in yellow on the bottom plan) to create the boot room, so the proportions echo across the space.
Easily find and hire a range of professionals in your area on Houzz.
Looking at the before and after plans here, you can see how she removed an L-shaped piece of wall (marked in yellow on the top plan) and built an L-shaped wall of the same size (marked in yellow on the bottom plan) to create the boot room, so the proportions echo across the space.
Easily find and hire a range of professionals in your area on Houzz.
The starting point for the style of the new rooms was the garden, which had been landscaped a couple of years before. “The garden came first, so it was outside to inside rather than the other way round,” Johanna says.
The flooring outside includes bricks by the back door and as a ‘rug’ under the table (just seen), and Johanna has brought both bricks and brick-coloured tiles inside. Within the tile design on the pillars, there are sections of thinner tiles, which also echo a pattern from outside.
“In the garden, there are creasing [thin, flat] tiles around the central brick ‘rug’, and also in the brick raised beds, so this is another way of bringing the outside in,” Johanna says. This ‘reeded’ pattern is subtly repeated throughout the room.
Ema Terracotta Mosaic Castello (small tiles); Ema Terracotta Mosaic Tetto (larger tiles), Claybrook.
The flooring outside includes bricks by the back door and as a ‘rug’ under the table (just seen), and Johanna has brought both bricks and brick-coloured tiles inside. Within the tile design on the pillars, there are sections of thinner tiles, which also echo a pattern from outside.
“In the garden, there are creasing [thin, flat] tiles around the central brick ‘rug’, and also in the brick raised beds, so this is another way of bringing the outside in,” Johanna says. This ‘reeded’ pattern is subtly repeated throughout the room.
Ema Terracotta Mosaic Castello (small tiles); Ema Terracotta Mosaic Tetto (larger tiles), Claybrook.
The “quiet heroes” of the broken-plan space, Johanna says, are the oversized pocket doors on the boot room and living area at the back, which make the space easy to divide or open up.
“Having extra-tall sliding doors was an expensive thing to do, because some had to be fire-rated, but it was essential for the rooms we wanted to create,” Johanna says. “Painting them the same colour as the joinery means they’re celebrated as sculptural objects.
“The owner was very much in favour of bold colour and not scared of it at all,” she continues. “This artwork – a piece they had already – was the starting point for the colours. I like to start with a piece we know is going to be in the room and go from there.”
Pocket doors, Portman Pocket Doors. Yellow woodwork painted in Muga, Paint & Paper Library.
“Having extra-tall sliding doors was an expensive thing to do, because some had to be fire-rated, but it was essential for the rooms we wanted to create,” Johanna says. “Painting them the same colour as the joinery means they’re celebrated as sculptural objects.
“The owner was very much in favour of bold colour and not scared of it at all,” she continues. “This artwork – a piece they had already – was the starting point for the colours. I like to start with a piece we know is going to be in the room and go from there.”
Pocket doors, Portman Pocket Doors. Yellow woodwork painted in Muga, Paint & Paper Library.
This photo shows the room before works (the old kitchen is behind the camera). The living room at the end wasn’t as cosy as it could have been and there was a shortage of storage.
Discover why you should hire a professional who uses Houzz Pro software.
Discover why you should hire a professional who uses Houzz Pro software.
Johanna built the boot room roughly where the radiator is in the previous photo. “A solution that seems so simple had caused [the owners] anxiety for years – what to do with all the clutter,” Johanna says. “The moment I said we should create the boot room, they said, ‘Eureka!’”
There’s masses of storage within drawers and different-sized cupboards, while tongue-and-groove panelling above the bench seat connects with the reeded elements elsewhere.
Johanna built a bookcase on the end next to the pocket door. “It’s about what you see when you come down the stairs [from the raised front of the house] – nice books and objects,” she says.
There’s masses of storage within drawers and different-sized cupboards, while tongue-and-groove panelling above the bench seat connects with the reeded elements elsewhere.
Johanna built a bookcase on the end next to the pocket door. “It’s about what you see when you come down the stairs [from the raised front of the house] – nice books and objects,” she says.
To the left as you enter from the boot room, just off the kitchen, is a staircase to the basement (to the right of the chair, not seen), where there’s a utility room.
Johanna has made the most of this nook to create pantry storage, so everything is to hand while being tucked away.
Johanna has made the most of this nook to create pantry storage, so everything is to hand while being tucked away.
The oak kitchen was handmade by a joiner. The subtle reeded pattern seen in the tiled pillars carries through into here in the extractor cover, dresser and splashback tiles.
The colour palette throughout the space is bold, but not bitty. “The colour is cohesive and easy to digest, because it’s all connected,” Johanna says. So the yellow boot room and pantry shelving are twinned with the sofa in the living room; the dark grey within the dresser chimes with the charcoal wall in the pantry; the aqua curtains on the rear doors mirror the splashback tiles, and the terracotta of the pillars is repeated in the kitchen quarry tiles.
“The terracotta is used sparingly but playfully,” Johanna says. “As it reaches the kitchen, it goes from eye level to floor level, so you feel there’s a relationship, but it’s not in your face.”
Base units painted in Nori, Paint & Paper Library.
The colour palette throughout the space is bold, but not bitty. “The colour is cohesive and easy to digest, because it’s all connected,” Johanna says. So the yellow boot room and pantry shelving are twinned with the sofa in the living room; the dark grey within the dresser chimes with the charcoal wall in the pantry; the aqua curtains on the rear doors mirror the splashback tiles, and the terracotta of the pillars is repeated in the kitchen quarry tiles.
“The terracotta is used sparingly but playfully,” Johanna says. “As it reaches the kitchen, it goes from eye level to floor level, so you feel there’s a relationship, but it’s not in your face.”
Base units painted in Nori, Paint & Paper Library.
There were a lot of discussions about the size of the opening into the kitchen, because previously it was smaller. “The husband wanted it open, but the wife was a little anxious, because there would be nowhere to hide the mess,” Johanna says. The owner agreed as long as they couldn’t see the cooker when they were eating, hence its position on the side wall.
“[The couple] don’t like spotlights, but working in a museum, the owner was used to seeing track lighting, so we designed those in and they can be pointed exactly at the areas they want to light,” Johanna says.
Koto Track lights, Astro Lighting.
“[The couple] don’t like spotlights, but working in a museum, the owner was used to seeing track lighting, so we designed those in and they can be pointed exactly at the areas they want to light,” Johanna says.
Koto Track lights, Astro Lighting.
Open and glazed shelving in the dresser and wall units (including the one above the sink) allow for colourful display.
Johanna chose different tiles for the splashback behind the sink. “I think it’s nice that they’re not the same tiles as the side ones, but they’re still of the same family, the smaller version,” she says.
Zeze Bonsai Mosaic splashback tiles, Claybrook.
Zeze Bonsai Mosaic splashback tiles, Claybrook.
The newly created dining area is a hit. “The owners love to entertain,” Johanna says. “The previous space didn’t accommodate it, but now they can.” The single shelf running along the space allows for an evolving display.
The skylight beams echo the oak flooring. “At first, we only had the metal beams, which are there to support the glass,” Johanna says. “But they looked too thin and we wanted to beef them up, so we created the oak-veneered beams below, which are only decorative and to hide the pendant light flex. They visually make the house harmonious – everything is the right scale and proportions for human comfort.”
Morandi Vintage LED glass pendant light, Lightzey.
The skylight beams echo the oak flooring. “At first, we only had the metal beams, which are there to support the glass,” Johanna says. “But they looked too thin and we wanted to beef them up, so we created the oak-veneered beams below, which are only decorative and to hide the pendant light flex. They visually make the house harmonious – everything is the right scale and proportions for human comfort.”
Morandi Vintage LED glass pendant light, Lightzey.
Thanks to the boot room and pocket door, the living room is now much cosier, though still connected to the wider space.
The timber doors are an exact replica of the original ones, but now with double glazing. “They were single glazed and didn’t fit that well, but the owner really loved them, so she commissioned replicas,” Johanna says.
The lighting is very thoughtful in here, too. The vintage yellow wall lamps are teamed with a pendant light and table lamps.
The lighting is very thoughtful in here, too. The vintage yellow wall lamps are teamed with a pendant light and table lamps.
The hanging chair, surrounded by garden and house plants, makes for a serene reading spot. The owners’ ceramics and textiles bring in the colour palette.
Doors painted in Railings, Farrow & Ball.
Doors painted in Railings, Farrow & Ball.
The extension frame and even the downpipe are copper, a request from the husband. “He wanted everything to have a sense of beauty to it as well as function,” Johanna says. “This copper won’t turn green – it’s treated to retain that beautiful, jewel-like quality.”
The fact the copper standing seams align with the glazing bars is just one of many quiet details that elevate this project.
Not surprisingly, the family love their new space. “They say it’s ‘life-changing’ and ‘transformative’,” Johanna says. And if proof were needed, they’ve asked her to do it all over again with their loft conversion.
Copper, Lockline Roofing. Bronze doors, Black Steel Doors.
Tell us…
What to you think of Johanna’s redesign of this space? Share your thoughts in the Comments.
The fact the copper standing seams align with the glazing bars is just one of many quiet details that elevate this project.
Not surprisingly, the family love their new space. “They say it’s ‘life-changing’ and ‘transformative’,” Johanna says. And if proof were needed, they’ve asked her to do it all over again with their loft conversion.
Copper, Lockline Roofing. Bronze doors, Black Steel Doors.
Tell us…
What to you think of Johanna’s redesign of this space? Share your thoughts in the Comments.





















Who lives here? A museum curator and a quantity surveyor with their two late-teens sons
Location East Finchley, north London
Property A Victorian semi-detached house
Size 56 sq m
Architect Johanna Ahrberg Jackson of Ahrberg Jackson Design
Project year 2024
Photos by David Giles Photography
The owners’ brief to Johanna was to create a side extension for a dining area, redesign the kitchen, and incorporate plenty of storage.
“The [couple] weren’t interested in having one whole space,” she says of the broken-plan layout. “They wanted to create a living room at the back that had a nice, squarish feel and still had the fireplace. So the extension was a case of finding the sweet spot between giving them a dining space without taking away too much of their living room.”
Johanna inherited a general idea of a footprint of the side extension. “We then tweaked the length so we ended up with something that felt proportionate for the inside, but also left enough of an outside space before you get to the garden,” she says.