Houzz Tours
Room Tours
Houzz Pro Tours
Room Tour: Light and Height in a Redesigned Kitchen and Utility
What began as a kitchen redesign became a multi-room renovation that now makes brilliant use of a long, narrow space
The owners of this house in Northamptonshire approached designer Andrea Yorston to refresh their dated and dark kitchen. They wanted it to look bright, fresh and modern, but worried that its long, narrow shape was a limitation.
One of the owners also doubted her own abilities. “She said, I haven’t got a design bone in my body; I’m clueless,” Andrea says. “I get this a lot from clients, but in fact, nobody is clueless, you just have to tease the ideas out of them.”
One of the owners also doubted her own abilities. “She said, I haven’t got a design bone in my body; I’m clueless,” Andrea says. “I get this a lot from clients, but in fact, nobody is clueless, you just have to tease the ideas out of them.”
One of the most striking features of this redesign is the angled roof fitted with Velux windows (see first photo). Raising the ceiling had not been part of the original plan, but the doors out to the garden were slightly lower than a standard doorway.
To rectify this, the roof had to be removed and the wall raised up by the depth of two bricks. “We thought, actually, if the roof’s coming off, let’s do something amazing with it,” Andrea says. The ceiling on the other side remains at standard height.
The nib wall seen here was the external wall of the house before it was extended in a previous renovation. The three cabinets on this side of it sit pleasingly under the three windows.
Walls painted in Slaked Lime (105), Little Greene.
To rectify this, the roof had to be removed and the wall raised up by the depth of two bricks. “We thought, actually, if the roof’s coming off, let’s do something amazing with it,” Andrea says. The ceiling on the other side remains at standard height.
The nib wall seen here was the external wall of the house before it was extended in a previous renovation. The three cabinets on this side of it sit pleasingly under the three windows.
Walls painted in Slaked Lime (105), Little Greene.
Andrea chose a butler’s sink for the centre of this cabinet run. “I wanted something that felt high-quality, robust and timeless,” she says. “A butler’s sink does it.”
Sink, Shaws of Darwen. Tap and nickel handles, Buster + Punch.
Sink, Shaws of Darwen. Tap and nickel handles, Buster + Punch.
The original garden doors, which were slightly shorter than standard height.
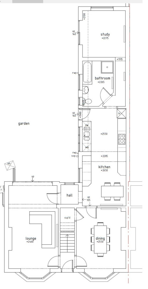
The original floor plan, complete with sizable bathroom and study at the rear.
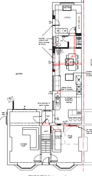
The new floor plan, with walls that were knocked down marked in red.
Ready to revamp your kitchen? Find a reviewed interior designer or kitchen designer on Houzz today.
Ready to revamp your kitchen? Find a reviewed interior designer or kitchen designer on Houzz today.
The kitchen before, with a dining area tucked into the space near the door, and the formal dining room at the front of the house beyond.
The kitchen before, looking the opposite way towards the back of the house.
Shaker-style cabinets bring the fresh, up-to-date look the owners were after. “They’re timeless, too,” Andrea says. “I’m always trying to make sure the design works long-term as well as feeling contemporary. In the future, if the owners tire of that colour, they could very easily have them repainted, rather than having to do a whole new kitchen.” The cabinets were made bespoke and painted in a soft putty shade.
On the wall perpendicular to the oven run, Andrea designed in a double cupboard that works as a larder and breakfast area, with a worksurface, toaster and coffee-making equipment. “The owner doesn’t like clutter,” she says. “She wanted it all to be very clean, so cupboard space was important to get everything put away but easily accessible.”
Appliances, all Miele.
On the wall perpendicular to the oven run, Andrea designed in a double cupboard that works as a larder and breakfast area, with a worksurface, toaster and coffee-making equipment. “The owner doesn’t like clutter,” she says. “She wanted it all to be very clean, so cupboard space was important to get everything put away but easily accessible.”
Appliances, all Miele.
The worktop, splashback and shelves are all Carrara marble.
Marble worktops, Rock Revelation. Wall lights, Pooky.
Marble worktops, Rock Revelation. Wall lights, Pooky.
Another of Andrea’s suggestions was to take out the downstairs bathroom. “I asked the owners if they needed it, or whether we could make it a bit smaller, turn it into a cloakroom, then pinch some of that space for the new dining area,” she says.
They were happy to lose it, as they have a shower room upstairs and their two sons are grown-up and no longer live at home. This work-in-progress shot shows it being demolished.
They were happy to lose it, as they have a shower room upstairs and their two sons are grown-up and no longer live at home. This work-in-progress shot shows it being demolished.
Andrea has included a space to eat at this end of the new kitchen, too. “The owners like entertaining,” she says. “When friends come over and sit here, whoever is cooking can still be part of the conversation, which is really nice.”
There are timber shelves in the dining area, which tie in beautifully with the oak-effect floor. They’re made from old scaffold boards. “I wanted something that looked a little bit rustic and not super-neat in here,” Andrea says. More bespoke units, built to fit this shallow space, house glasses.
There are timber shelves in the dining area, which tie in beautifully with the oak-effect floor. They’re made from old scaffold boards. “I wanted something that looked a little bit rustic and not super-neat in here,” Andrea says. More bespoke units, built to fit this shallow space, house glasses.
The bathroom was stripped out and a smaller cloakroom created in its place. This meant the once narrow corridor could be widened and made shorter, with space freed up for the dining area. Bifold doors give views of the garden and let in lots of light.
More: How to Start a Kitchen Renovation
More: How to Start a Kitchen Renovation
The room at the end of the extension was once a study, but had become a dumping ground. “It wasn’t needed or used,” Andrea says. “It has a door into the garden and is actually a really good space, so I felt we needed to utilise it.”
The room was repurposed as a utility and boot room, with a dedicated dog shower for the owners’ Portuguese water dog. “She’s quite big with a very thick coat, so she gets muddy,” Andrea says. “She didn’t like being washed outside in the winter, so the owners said, OK, we’ll let her have her own shower indoors with hot and cold running water!”
Luxury vinyl tiles run throughout the refurbished space. “LVT is super-practical, especially in wet areas,” Andrea says. “It’s really robust, you don’t get the shrinking and expanding of wood, it’s not going to get bleached by the sun, and it works really well with underfloor heating, which we’ve fitted throughout.”
LVT in Natural Oak, Invictus. Sink, Shaws of Darwen. Cabinets painted in Bone China Blue, Little Greene. Tiles, Claybrook.
The room was repurposed as a utility and boot room, with a dedicated dog shower for the owners’ Portuguese water dog. “She’s quite big with a very thick coat, so she gets muddy,” Andrea says. “She didn’t like being washed outside in the winter, so the owners said, OK, we’ll let her have her own shower indoors with hot and cold running water!”
Luxury vinyl tiles run throughout the refurbished space. “LVT is super-practical, especially in wet areas,” Andrea says. “It’s really robust, you don’t get the shrinking and expanding of wood, it’s not going to get bleached by the sun, and it works really well with underfloor heating, which we’ve fitted throughout.”
LVT in Natural Oak, Invictus. Sink, Shaws of Darwen. Cabinets painted in Bone China Blue, Little Greene. Tiles, Claybrook.
There’s ample storage for cleaning and laundry products here, as well as space for a washing machine and tumble dryer, and open shelves for display.
The tall cupboard houses the manifold for the underfloor heating. “The space was very cold and draughty before; now it’s so warm,” Andrea says.
The tall cupboard houses the manifold for the underfloor heating. “The space was very cold and draughty before; now it’s so warm,” Andrea says.
Between the kitchen door and the back door there’s a built-in coat rack with seating and storage.
The owners first contacted Andrea in January 2024 and, once surveys and planning were obtained and builders were on board, the work began in around July and was completed in January 2025.
The couple are loving their new space, saying in their Houzz review, “The end result exceeded our expectations in every way. We couldn’t be happier with how everything turned out – our home is beautiful, functional, and feels like ‘us.’ Andrea brought a clear vision, impeccable style, and a true wow factor to our home and really excelled in creating solutions to problems with thought, practicality and attention to detail. We felt in safe hands.”
Tell us…
What’s your favourite element of this transformation? Let us know in the Comments.
The couple are loving their new space, saying in their Houzz review, “The end result exceeded our expectations in every way. We couldn’t be happier with how everything turned out – our home is beautiful, functional, and feels like ‘us.’ Andrea brought a clear vision, impeccable style, and a true wow factor to our home and really excelled in creating solutions to problems with thought, practicality and attention to detail. We felt in safe hands.”
Tell us…
What’s your favourite element of this transformation? Let us know in the Comments.
























Who lives here? A couple and their dog
Location Burton Latimer, Northamptonshire
Property A semi-detached, double-fronted home with three bedrooms and one bathroom
Dimensions of kitchen, utility room and cloakroom combined 13.80m x 3.26m
Project year 2024, completed in January 2025
Designer Andrea Yorston of Andrea Yorston Interior Design
Photos by Osborne Photography
The owners had never worked with an interior designer before, and Andrea began by meeting with them online before going over to the property. “[The owner] was worried the kitchen would feel very long and narrow, and unsure about how it was going to look different to the existing layout,” Andrea says. “I used Houzz Pro’s 3D modelling in the early stages and that really helped.”
Andrea designed a small breakfast bar to divide the kitchen and dining room. “Being able to visualise that in 3D format really helped her see how it would look very different,” she says.
Pendant lights, Pooky.