Kitchen Tour: Warm Industrial Style for a Cool Kitchen Extension
Thoughtful, problem-solving design and some clever inclusions bring style and functionality without busting the budget
After living in this Victorian terraced house for about 18 months, the owners were ready to renovate the kitchen and asked Anna Shepherd of Life Design London to help. “They are local and I know them,” Anna says. “Our styles are quite aligned.”
The owners already had a building company on board who had secured Planning Permission to extend into the side return. They had also prepped mood boards packed with images of exposed beams, solid wood cabinets and poured concrete floors. Anna’s task was to design a beautiful kitchen that worked hard for this family of five, but also to help the couple establish a list of priorities so they could stay within budget. The result is a gorgeous design that serves up the warm, industrial look they wanted.
The owners already had a building company on board who had secured Planning Permission to extend into the side return. They had also prepped mood boards packed with images of exposed beams, solid wood cabinets and poured concrete floors. Anna’s task was to design a beautiful kitchen that worked hard for this family of five, but also to help the couple establish a list of priorities so they could stay within budget. The result is a gorgeous design that serves up the warm, industrial look they wanted.
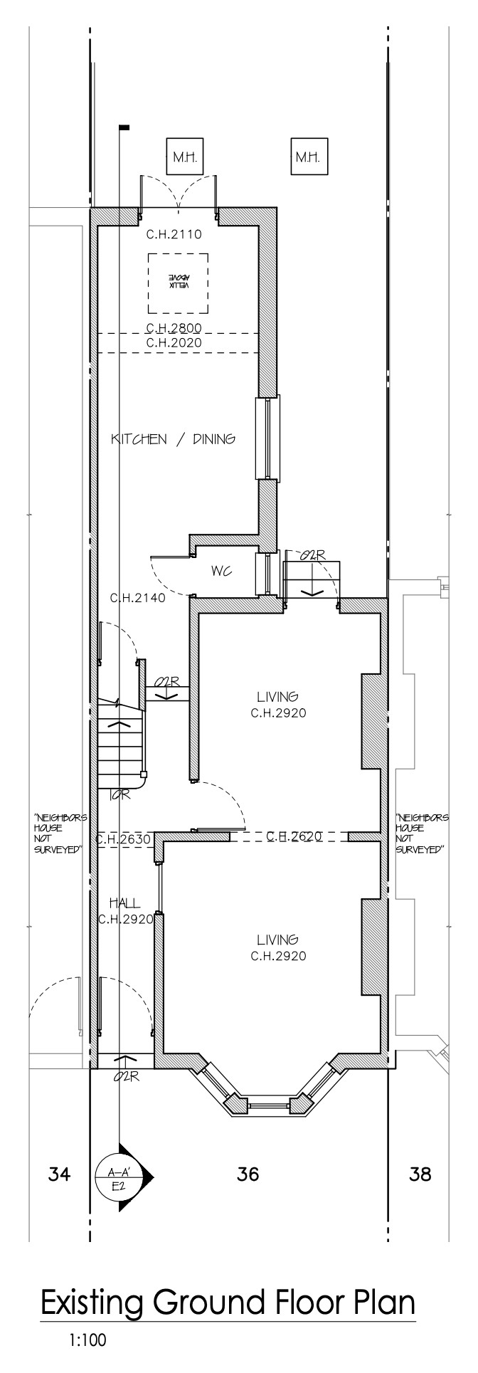
Plans of how the kitchen was originally.
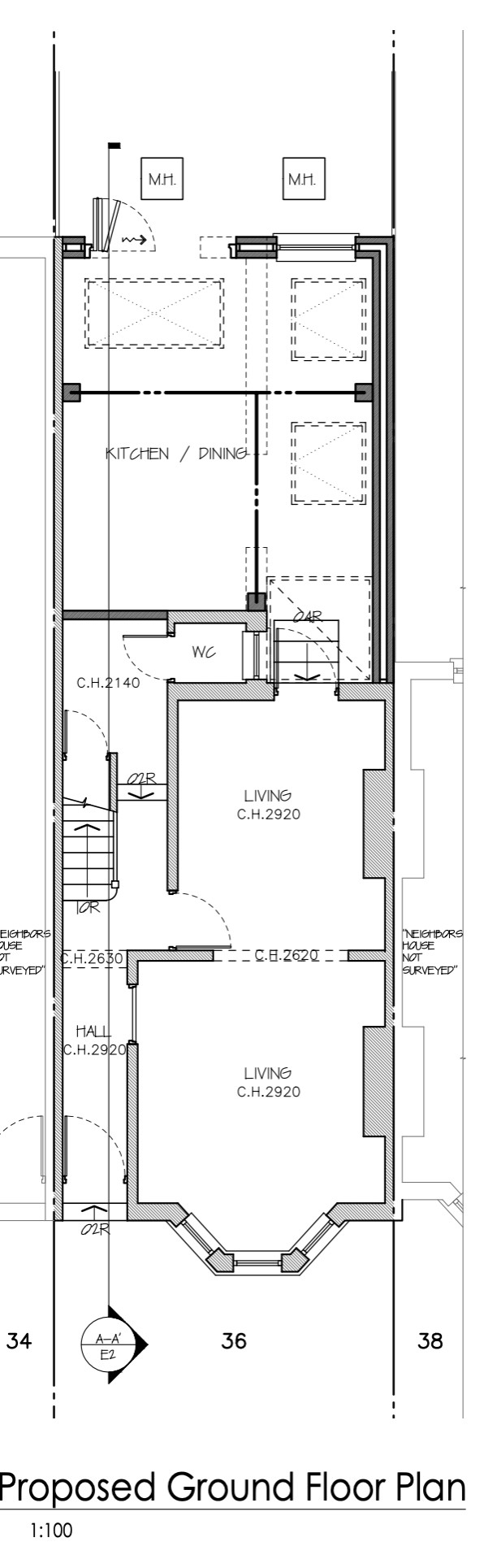
These plans show the new extension into the side-return to the right.
Find reviewed kitchen designers and interior designers on Houzz.
Find reviewed kitchen designers and interior designers on Houzz.
The owners initially wanted an island in the middle of the room, but Anna isn’t a fan, as she feels they can often waste space. Instead, she suggested two possible designs for the space that featured peninsula units.
“I love kitchen design,” she says. “There’s always a definite winner, and then one that could work but has some compromises.” This design was everyone’s clear winner.
“I love kitchen design,” she says. “There’s always a definite winner, and then one that could work but has some compromises.” This design was everyone’s clear winner.
“There is so much storage,” Anna says, “and the inner section of the room has a lower ceiling, so obviously that’s where the table needed to go.”
The storage is also perfectly designed to accommodate the owners’ stuff and suit their lifestyle. “Unless you’re super-tidy, the only way you can keep a kitchen in good shape is if it’s designed so everything has a proper place to go,” she says. “You won’t schlep an air fryer across the room to put it away – it will just end up sitting on the worktop. You don’t become tidy just because you have a new kitchen.”
This bank of units contains breakfast foods and coffee-making equipment to the left of the fridge-freezer, handily close to the dining table, while on the right there’s pull-out storage for the vacuum cleaner and other bulky kit.
The storage is also perfectly designed to accommodate the owners’ stuff and suit their lifestyle. “Unless you’re super-tidy, the only way you can keep a kitchen in good shape is if it’s designed so everything has a proper place to go,” she says. “You won’t schlep an air fryer across the room to put it away – it will just end up sitting on the worktop. You don’t become tidy just because you have a new kitchen.”
This bank of units contains breakfast foods and coffee-making equipment to the left of the fridge-freezer, handily close to the dining table, while on the right there’s pull-out storage for the vacuum cleaner and other bulky kit.
At the rear of the space, the roof is pitched on both sides, with the bricks of what had been the external house wall left exposed, adding to the textural, industrial feel of the room.
The peninsula unit has seating on one side and, on the other, storage and the oven. It also houses the hob. “It breaks up the space and you can properly use both sides,” Anna says.
More: How to Start a Kitchen Renovation
The peninsula unit has seating on one side and, on the other, storage and the oven. It also houses the hob. “It breaks up the space and you can properly use both sides,” Anna says.
More: How to Start a Kitchen Renovation
Rather than a traditional paint job for the walls, Anna suggested using a limewash to add texture and depth. “You layer up the effect, and have to be random but routinely random, so you don’t go over the same spot again and again,” she says.
Lashings of black throughout the room provide definition, but a couple of the wall lights are in a playful pink colour, to tweak that uniformity.
Limewash paint, Bauwerk. Anglepoise Type 80 wall light, Heal’s.
Lashings of black throughout the room provide definition, but a couple of the wall lights are in a playful pink colour, to tweak that uniformity.
Limewash paint, Bauwerk. Anglepoise Type 80 wall light, Heal’s.
When it came to fixtures and fittings, Anna stepped into a mediator role. “One of the owners is very creative, with champagne tastes but a lemonade budget,” she laughs. “He had dreams of luxurious finishes everywhere. His partner, though, is very financially conscious, so if you don’t have the money, you don’t spend it.”
Anna was able to reassure both owners that she could make the space look beautiful, “but with a hierarchy for what we should spend on. There was a lot of, I see what you like, but we could do this instead to get the overall vibe and also stay within budget,” she says.
Anna was able to reassure both owners that she could make the space look beautiful, “but with a hierarchy for what we should spend on. There was a lot of, I see what you like, but we could do this instead to get the overall vibe and also stay within budget,” she says.
So Anna looked for ways to introduce all the ingredients the owners wanted, but at a price that worked for them both. “Instead of a polished concrete floor, which costs £100 sq m, we used large-format concrete tiles,” she says.
The beautiful kitchen units are finished with an oak veneer. “They had solid wood handmade kitchens on their mood boards and were worried that veneers might not look as good, but we got some samples and they were convinced,” Anna says. “The veneer looks brilliant with the floor and the black accents and also means fewer trees being cut down.”
Bar stools, John Lewis & Partners.
The beautiful kitchen units are finished with an oak veneer. “They had solid wood handmade kitchens on their mood boards and were worried that veneers might not look as good, but we got some samples and they were convinced,” Anna says. “The veneer looks brilliant with the floor and the black accents and also means fewer trees being cut down.”
Bar stools, John Lewis & Partners.
Underfloor heating in a room of this size would also have been pricey, so to keep costs down, Anna opted for simple column radiators. Also, in the pitched roof that runs the length of one side of the kitchen, she stipulated simple Velux windows. “Not even the electric ones,” she says.
The owners definitely wanted exposed steel beams and metal windows, though. “What they didn’t realise is that it’s actually quite expensive to have exposed beams, because you have to put a lot of fire-retardant on them,” Anna says. “It’s much cheaper to just cover them up.”
Saving money on some details elsewhere, though, meant there was enough budget for them. “They look great, too,” she adds, “especially with all the different levels in there.”
The owners were also happy to splash out on a powerful hob extractor that sucks from underneath. “That was one of [the owner’s] things: she wanted to be able to cook anything and not have smells linger,” Anna says.
Saving money on some details elsewhere, though, meant there was enough budget for them. “They look great, too,” she adds, “especially with all the different levels in there.”
The owners were also happy to splash out on a powerful hob extractor that sucks from underneath. “That was one of [the owner’s] things: she wanted to be able to cook anything and not have smells linger,” Anna says.
The worktops are an innovative smart material called Fenix. “It’s very thin and light, not like stone or quartz,” Anna says. “The builders can cut it, too, so you’re not having to pay a specialist worktop person.”
Anna loves its super-matt finish and how the large sink is inlaid. “We had ordered it in a green colour; it was the stuff of dreams,” she says. “But although it was meant to be in stock, it kept getting delayed. We were running out of time and needed a Plan B, so we went with the grey.”
Anna was disappointed at the time, but since then has a different take. “Seeing how the owners have accessorised the space now, the grey actually really works, perhaps even better than the green would have,” she says.
Fenix, Worktop Express.
Anna loves its super-matt finish and how the large sink is inlaid. “We had ordered it in a green colour; it was the stuff of dreams,” she says. “But although it was meant to be in stock, it kept getting delayed. We were running out of time and needed a Plan B, so we went with the grey.”
Anna was disappointed at the time, but since then has a different take. “Seeing how the owners have accessorised the space now, the grey actually really works, perhaps even better than the green would have,” she says.
Fenix, Worktop Express.
The new kitchen is working beautifully for the owners and gets compliments from visitors. “When everybody who walks in says, I would never have thought of that, then, as a designer, that’s the best thing I can hear,” Anna says. “I love the problem-solving part of designing. By the time we get to carpet and cushions, I’m less excited. All my brain power goes on the problems and when we’ve fixed them all, I’m happy.”
The owners are happy, too. “Anna was a breath of fresh air for our project,” they said. “[Her] expertise came not only with her design ideas, concepts and inspiration, but also in the way she was able to efficiently and compassionately resolve family differences of opinion and the odd design conflict! She was also a miracle worker at working within budget. The final result is stunning, and this is down to Anna’s original thinking, great design and fantastic eye for detail.”
Tell us…
What do you like about this kitchen space? Add your thoughts in the Comments.
The owners are happy, too. “Anna was a breath of fresh air for our project,” they said. “[Her] expertise came not only with her design ideas, concepts and inspiration, but also in the way she was able to efficiently and compassionately resolve family differences of opinion and the odd design conflict! She was also a miracle worker at working within budget. The final result is stunning, and this is down to Anna’s original thinking, great design and fantastic eye for detail.”
Tell us…
What do you like about this kitchen space? Add your thoughts in the Comments.

















Who lives here? A family of five
Location Stoke Newington, north London
Property A Victorian terraced house
Size Four bedrooms and two bathrooms
Room dimensions 4.5m x 5m (to the dining corner)
Designer Anna Shepherd of Life Design London
Kitchen installers Ornate Kitchens & Interiors
Project year 2023
The kitchen extension was the first improvement the owners tackled in their home. “Side returns are expensive for the amount of extra space you gain,” Anna says. “They were only going to get about 3 sq m more, so I needed to make the most of the space, so the additional 3 sq m felt game-changing.”