Kitchen Tour: A Victorian Terrace Gets a Low-carbon Extension
This clever renovation shows how a Victorian house can be transformed with a hugely reduced environmental impact
Hempcrete, reduced-CO2 concrete and no steel or plasterboard at all… This award-winning reworking of a small London terrace is inspiring for anyone keen to build a sustainable extension.
Architect Kieran Hawkins of Cairn, who was behind the project, says that by minimising the use of steel, concrete and internal linings, choosing second-hand where possible, limiting demolition and, ideally, selecting new materials with a low carbon content in mind, the house’s lifetime carbon figure is 40% lower than if it had been rebuilt conventionally. Read on to see how he did it.
Architect Kieran Hawkins of Cairn, who was behind the project, says that by minimising the use of steel, concrete and internal linings, choosing second-hand where possible, limiting demolition and, ideally, selecting new materials with a low carbon content in mind, the house’s lifetime carbon figure is 40% lower than if it had been rebuilt conventionally. Read on to see how he did it.
Kieran extended into the side return and went out only about one metre at the back of the house. In this before photo, you can see how the space has been transformed, despite it not being hugely expanded.
Find the perfect local architect or building designer for your project in the Houzz Professionals Directory.
Find the perfect local architect or building designer for your project in the Houzz Professionals Directory.
The structure of the extension is a sustainably sourced hardwood, sapele, rather than steel. “This was a bit of a compromise on the sustainability front, as it comes from Africa,” Kieran says. “It was shipped, though, not flown.”
He says that UK timber is not really strong enough for this job, unless it’s oak, which is scarce these days for jobs like this, and “extraordinarily expensive”.
Between the beams, the fixed panes are a simple ‘patent glazing’ system, chosen for both budget and aesthetics. “It’s [often] used in factories,” Kieran says. The glass is just supported at the long edges, but not at the top and bottom, which, in part, is what makes it a potentially more affordable option, along with the fact that, traditionally, it requires small panes.
“It’s very simple and [the owners] were happy having small sections of glazing rather than very big pieces of glass,” he says. “It also made sense to celebrate those lovely beams and structure.”
The flooring is reclaimed boards. “It was previously in Bow Street Magistrates’ Court, so it has a story to it, which is nice,” he says. “You can imagine all the judges and criminals that walked across it.”
Although it can be more expensive working with unfamiliar or reclaimed materials and methods – and more difficult to get contractors to commit to a solid quote upfront – costs were recouped by the reduced demolition [with much of the old structure retained] and by buying as much as possible second-hand. “It’s about reallocating the budget and doesn’t mean the whole project is more expensive,” he says.
He says that UK timber is not really strong enough for this job, unless it’s oak, which is scarce these days for jobs like this, and “extraordinarily expensive”.
Between the beams, the fixed panes are a simple ‘patent glazing’ system, chosen for both budget and aesthetics. “It’s [often] used in factories,” Kieran says. The glass is just supported at the long edges, but not at the top and bottom, which, in part, is what makes it a potentially more affordable option, along with the fact that, traditionally, it requires small panes.
“It’s very simple and [the owners] were happy having small sections of glazing rather than very big pieces of glass,” he says. “It also made sense to celebrate those lovely beams and structure.”
The flooring is reclaimed boards. “It was previously in Bow Street Magistrates’ Court, so it has a story to it, which is nice,” he says. “You can imagine all the judges and criminals that walked across it.”
Although it can be more expensive working with unfamiliar or reclaimed materials and methods – and more difficult to get contractors to commit to a solid quote upfront – costs were recouped by the reduced demolition [with much of the old structure retained] and by buying as much as possible second-hand. “It’s about reallocating the budget and doesn’t mean the whole project is more expensive,” he says.
This view along the side return runs from the new back door, along the kitchen and – via a few steps – to the knocked-through living areas at the front of the house.
“You can see the existing brick on the left,” Kieran says. “One of the key sustainability strategies here was to leave as much of the structure as possible. So we left sections of the wall in place as columns, rather than trying to make completely open-plan areas.
“Not wanting a space that’s as big and open as you can get requires a bit of a change in mindset,” he continues. “But, actually, having more structure there can create different spaces and more interest internally that gives more character. It can also save money as well as saving carbon, so it’s a win-win-win.”
“You can see the existing brick on the left,” Kieran says. “One of the key sustainability strategies here was to leave as much of the structure as possible. So we left sections of the wall in place as columns, rather than trying to make completely open-plan areas.
“Not wanting a space that’s as big and open as you can get requires a bit of a change in mindset,” he continues. “But, actually, having more structure there can create different spaces and more interest internally that gives more character. It can also save money as well as saving carbon, so it’s a win-win-win.”
Kieran chose to keep the hempcrete exposed. “Beneath it is a plywood backer then a cavity then bricks,” he says. “Hempcrete is insulating and it regulates the humidity in the space, as it’s breathable. It’s nice acoustically, too. And leaving it exposed gives you this lovely, stratified and textured finish.”
Pictures can’t be hung on the hempcrete itself. “But there are timber studs in between [where fixings could be attached] and pictures can be hung from the top of the wall,” Kieran says.
He also designed around this restriction. “The idea was that we’d have a high shelf up there for lights and pictures, but [the owners] decided not to do it in the end. They can in the future, though.” You can see one of the electrical sockets he wired in for the purpose here.
Pictures can’t be hung on the hempcrete itself. “But there are timber studs in between [where fixings could be attached] and pictures can be hung from the top of the wall,” Kieran says.
He also designed around this restriction. “The idea was that we’d have a high shelf up there for lights and pictures, but [the owners] decided not to do it in the end. They can in the future, though.” You can see one of the electrical sockets he wired in for the purpose here.
The reeded glass door to the left of the back door leads to the bathroom, since the owners opted not to move it upstairs. “We looked at lots of options,” Kieran says, “but as it’s just the two of them, they didn’t mind. The bathroom is all new, although we reused some of the fittings. The location moved backwards, using the one metre rear extension space.”
More: Meet the Sustainably-minded Pros Striving for Empty Skips
More: Meet the Sustainably-minded Pros Striving for Empty Skips
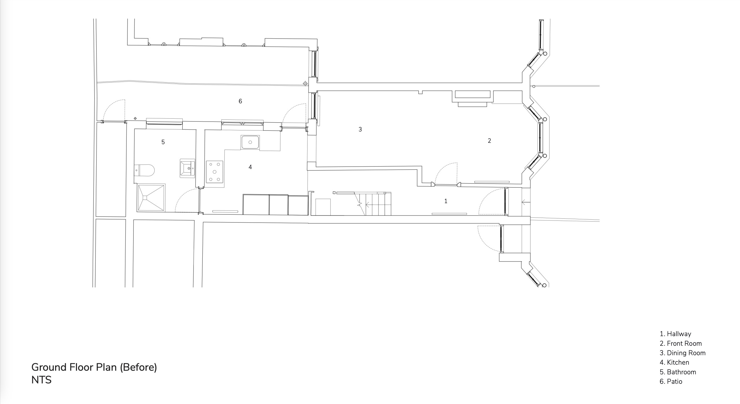
This floor plan shows the layout pre renovation.
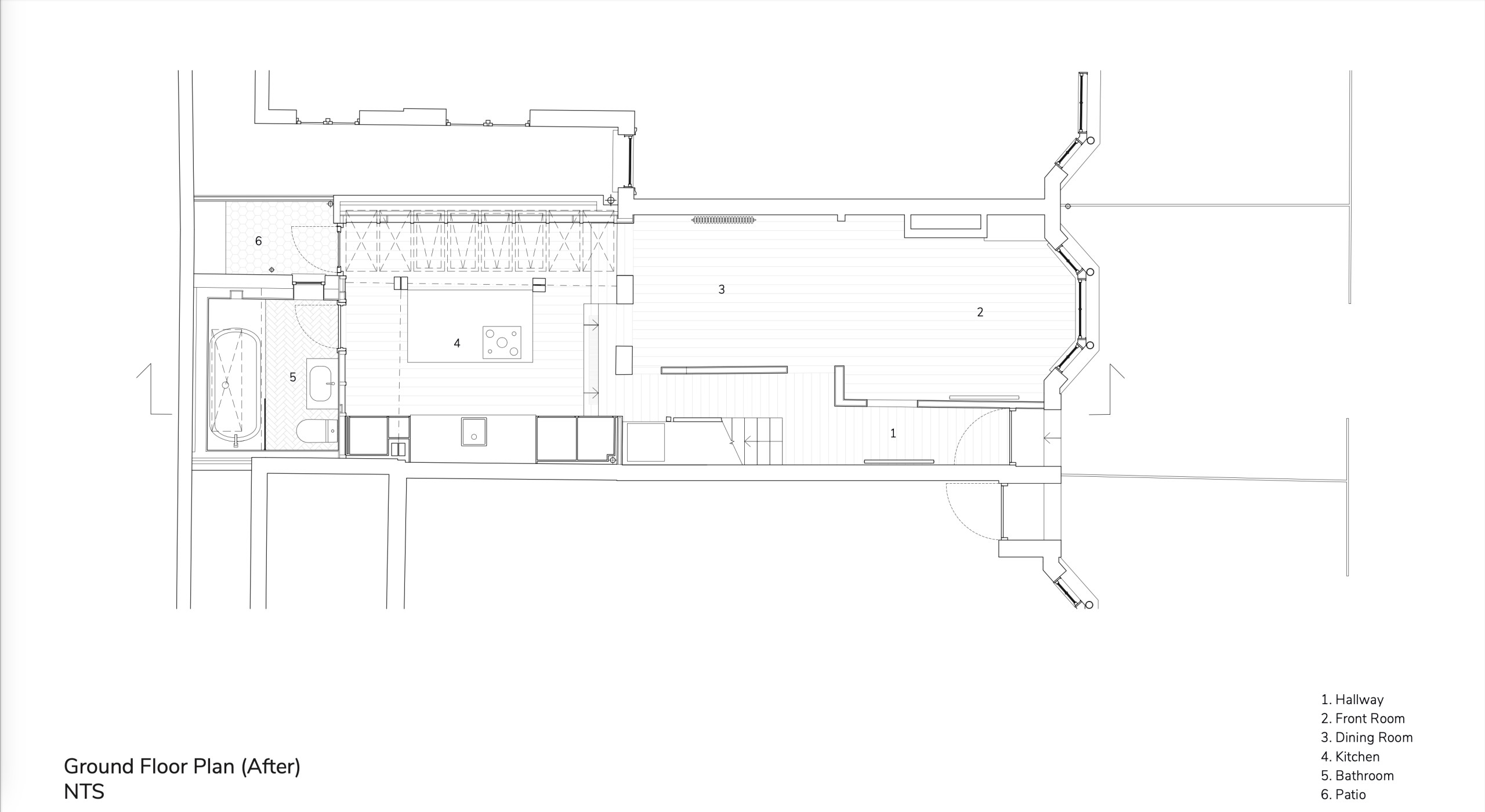
Here it is after the addition of the side return and the extra metre at the back.
Within the open shelving, Kieran incorporated a slatted section, so it doubles as a draining board over the sink. “Its quite old-school, not many people do that these days,” he says.
There are more painted exposed bricks here, meaning, again, no plasterboard.
The island houses the hob, another oven and deep drawer storage. All the appliances are reused or second-hand.
Brick painted in Peach Baby breathable clay paint, Earthborn.
There are more painted exposed bricks here, meaning, again, no plasterboard.
The island houses the hob, another oven and deep drawer storage. All the appliances are reused or second-hand.
Brick painted in Peach Baby breathable clay paint, Earthborn.
The tall units by the stairs house a pantry cupboard and a fridge-freezer.
The wall lights attached to the side of the units are second-hand, as is much of the lighting.
Reclaimed tiles on stair risers, Bert & May. Oak veneer cabinet fronts, Xylo Furniture.
The wall lights attached to the side of the units are second-hand, as is much of the lighting.
Reclaimed tiles on stair risers, Bert & May. Oak veneer cabinet fronts, Xylo Furniture.
The worktop and previously seen splashback is a terrazzo-style material made from waste woodchips set in resin. “It’s all recycled and very sustainable, a lovely product. It looks like nougat,” Kieran says.
The idea of this step into the living area is that it can also be used as a bench and it opens up like a chest for storage.
Bianco London Plane timber terrazzo worktop and splashback, Foresso.
The idea of this step into the living area is that it can also be used as a bench and it opens up like a chest for storage.
Bianco London Plane timber terrazzo worktop and splashback, Foresso.
The same view before the side return extension. Although not huge, the area has made a significant difference to the feel of the new internal space.
The brickwork pillar here is a remnant of the old wall, simply painted.
The back of the house was lowered during the project in order to get the necessary head height in the side return. “This is because we couldn’t go higher there due to neighbours,” Kieran explains. “This shows how much we dug down – it was about half a metre.”
The middle four rooflights open individually with a pole that attaches to the metal screws seen poking out. “We all liked the idea of things being shown for what they are,” Kieran says. “You can get electrical openings, but there’s a cost – and a socket.”
Kieran added a small, high, circular window to boost natural light in the now more enclosed middle room. “But it’s a very well-lit space,” he says, “since the front is all open-plan and there are no doors on the ground floor except to the bathroom.”
Because there’s no street access from the back garden, a mist system was installed so as to comply with Building Regulations.
Most of the furniture is second-hand and, along with the patina of the pre-loved pieces, a wall painted in an earthy gold adds warmth. “It works well with the natural wood, wicker light shade and hempcrete,” Kieran says.
Feature wall painted in Yellow Gold clay paint, Auro.
Because there’s no street access from the back garden, a mist system was installed so as to comply with Building Regulations.
Most of the furniture is second-hand and, along with the patina of the pre-loved pieces, a wall painted in an earthy gold adds warmth. “It works well with the natural wood, wicker light shade and hempcrete,” Kieran says.
Feature wall painted in Yellow Gold clay paint, Auro.
The threshold between the middle room and the front living room can be divided with a curtain. “It’s very simple, and psychological more than anything,” Kieran says. “The curtain rail is on the beam between the front and back that’s also used as a [book]shelf. Those two rooms had already been opened up and we opened them up more.”
Another clever change Kieran made was to remove the original door into the front room from the hallway. He filled the void with open shelving, accessible from both sides. The bottom shelf holds shoes and the others are for decorative objects.
The wooden stairs and flooring in the hall and living room are original, refurbished and oiled.
Living room and hall walls painted in Chiffon, Grafenstone.
Another clever change Kieran made was to remove the original door into the front room from the hallway. He filled the void with open shelving, accessible from both sides. The bottom shelf holds shoes and the others are for decorative objects.
The wooden stairs and flooring in the hall and living room are original, refurbished and oiled.
Living room and hall walls painted in Chiffon, Grafenstone.
A small but visually significant detail is that Kieran took the height of the doorways up to the ceiling.
Staircase handrail and landing wall painted in True Blue, Auro.
Staircase handrail and landing wall painted in True Blue, Auro.
The large front garden makes up for the weeny courtyard at the back. “We also made a little terrace on the roof of the bathroom in the outrigger,” Kieran says. “It was already unofficially being used as a terrace and the neighbours made no complaints, so we could get it through planning.
“It’s so tight at the back that everyone can look into everyone’s houses anyway,” he adds, “so it made no difference in terms of people feeling overlooked. It’s a very high-density urban setting.”
The sash windows are new and double-glazed.
“It’s so tight at the back that everyone can look into everyone’s houses anyway,” he adds, “so it made no difference in terms of people feeling overlooked. It’s a very high-density urban setting.”
The sash windows are new and double-glazed.
What do the owners think of their sustainably reworked home? “They love it and they really enjoy the extra space and quality of light,” Kieran says. “Also, they like that there’s a story to pretty much all the elements in the house, whether that’s the provenance of the material or their knowledge of where everything came from.
“They were also happy they showcased a few unconventional ways of doing things and were really pleased sustainability-wise,” he adds.
One major green feature is the concrete floor slab. “This is the first building in the UK to use this [low-carbon] cement, which has been developed in Switzerland,” he says, explaining that the product generates 30% to 40% less carbon dioxide than standard concrete.
“It’s often the floor and the concrete foundations that generate the most carbon,” he says. “If all extensions happening in the UK right now were using this type of cement, the impact would be enormous.”
Tell us…
Does this project inspire you to try some of the sustainable practices used here for your own renovation? Let us know in the Comments.
“They were also happy they showcased a few unconventional ways of doing things and were really pleased sustainability-wise,” he adds.
One major green feature is the concrete floor slab. “This is the first building in the UK to use this [low-carbon] cement, which has been developed in Switzerland,” he says, explaining that the product generates 30% to 40% less carbon dioxide than standard concrete.
“It’s often the floor and the concrete foundations that generate the most carbon,” he says. “If all extensions happening in the UK right now were using this type of cement, the impact would be enormous.”
Tell us…
Does this project inspire you to try some of the sustainable practices used here for your own renovation? Let us know in the Comments.
























Who lives here? A young, environmentally conscious couple – a chef and a gardener
Location Hackney, east London
Property A ‘two up, two down’ Victorian terraced cottage
Room dimensions Kitchen, 4.3m x 3.8m, and living/dining room, 7m x 2.8m
Architect Kieran Hawkins of Cairn Architects
Project year 2023
Photos by James Retief
The owners of this Victorian terrace were torn about extending. Not only did they already have a very small garden, which you can glimpse here, they were also concerned about the environmental effect of a potential demolition and build.
“They wanted to minimise the impact of what they were doing and were in fact initially conflicted about doing an extension at all,” Kieran says. But they liked Kieran’s plan, which went on to win the firm the Don’t Move, Improve! Environmental Leadership Prize 2024. “They were willing to take risks and do something slightly unconventional,” he says.
“The design was driven by a strategy of working with what was there, the carbon content of necessary new materials, their build-ability and cost,” he adds.