Kitchen Tour: A Modest Extension Lets in the Sunshine
Before and after photos reveal a small space designed for enjoying nature, sunshine and the pleasures of family life
When it came to creating a kitchen-diner for his young family in their 1930s terraced house, architect John Crowley of Anthro Architecture was sure of his priorities: quality over quantity. “Often, you’re thinking about how to add value [to a property], but I’ve gone more into not focusing on increased floor area as the value, but rather the quality of the space,” he says.
His philosophy shines through in his new, modestly sized kitchen-diner, which combines plenty of tailored storage, abundant daylight, easy access to the garden, and the pinnacle – a coffee pantry that makes mornings a pleasure.
His philosophy shines through in his new, modestly sized kitchen-diner, which combines plenty of tailored storage, abundant daylight, easy access to the garden, and the pinnacle – a coffee pantry that makes mornings a pleasure.
The conservatory, seen here from the dining room, was old and the three rooms were poorly connected.
The old galley kitchen.
Combining the three rooms has given the family a sociable, inside-outside space. The new extension sits on the footprint of the old conservatory. This was partly to preserve the garden and partly to reduce costs.
“Instinct would say go out further, but we just love the garden so much and didn’t want to lose any of it,” John says. “That was the benefit of having lived here for a while [– knowing what we wanted from the space].
“There was also a cost element,” he continues. “We’re in a clay soil area and foundations are a massive part of the costs, so I took a punt to see if we could build on the foundations of the conservatory, and we were able to. That helped massively with keeping the costs in a reasonable place.”
Find reviewed architects and interior designers in your area on Houzz.
“Instinct would say go out further, but we just love the garden so much and didn’t want to lose any of it,” John says. “That was the benefit of having lived here for a while [– knowing what we wanted from the space].
“There was also a cost element,” he continues. “We’re in a clay soil area and foundations are a massive part of the costs, so I took a punt to see if we could build on the foundations of the conservatory, and we were able to. That helped massively with keeping the costs in a reasonable place.”
Find reviewed architects and interior designers in your area on Houzz.
The most eye-catching feature is the steel that holds up the back of the house. The cheery yellow reflects the desire to bring in as much sunshine as possible.
“The whole house is geared up for the summer here,” John says. “As Irish people, the south-east of England summers are amazing. Those bifold doors are open a lot of the time. You come down on a summer morning and open them and you’re in the garden.”
The kitchen faces south-east, so it’s filled with light throughout the morning, then the bottom of the garden gets the evening sun.
With his young children in mind, John chose LVT flooring for its durability. “It’s perfect because it’s so tough and such good value,” he says. “It’s been given all sorts of abuse.”
Kitchen, Kitchens By Design UK; painted in Stone. Amtico flooring, Daniel James Flooring. Steel beam painted in Babouche, Farrow & Ball.
“The whole house is geared up for the summer here,” John says. “As Irish people, the south-east of England summers are amazing. Those bifold doors are open a lot of the time. You come down on a summer morning and open them and you’re in the garden.”
The kitchen faces south-east, so it’s filled with light throughout the morning, then the bottom of the garden gets the evening sun.
With his young children in mind, John chose LVT flooring for its durability. “It’s perfect because it’s so tough and such good value,” he says. “It’s been given all sorts of abuse.”
Kitchen, Kitchens By Design UK; painted in Stone. Amtico flooring, Daniel James Flooring. Steel beam painted in Babouche, Farrow & Ball.
The cabinetry was made bespoke by a kitchen company. As there’s no space in the house for a utility room, John designed a laundry cupboard to the right of the fridge-freezer containing a washing machine and dryer, with laundry baskets above them. “It works quite well,” he says. “They’re not integrated appliances – those cupboards are around 80cm deep, so you can fit everything in.”
The deeper cabinets also mean the fridge-freezer doesn’t sit too far forwards. “We had that before, so many choices were driven by it,” he explains.
The splashback and worktops are quartz, the white surface helping to maximise that glorious light.
The couple didn’t want too many light fittings in the room, favouring mostly ambient light. Spotlights are tucked discreetly into the steel beam to light the extended space after dark. “When it comes to lighting, I like to hide lights like that from the primary view, so you don’t really notice them. I love clean edges,” John says.
There are further hidden lights in the room – for example, concealed uplighters in the pelmets above the cabinets. “They’re the ones you put on when you come down in the early morning with a toddler and it’s still dark – they’re not too offensive,” he laughs.
The deeper cabinets also mean the fridge-freezer doesn’t sit too far forwards. “We had that before, so many choices were driven by it,” he explains.
The splashback and worktops are quartz, the white surface helping to maximise that glorious light.
The couple didn’t want too many light fittings in the room, favouring mostly ambient light. Spotlights are tucked discreetly into the steel beam to light the extended space after dark. “When it comes to lighting, I like to hide lights like that from the primary view, so you don’t really notice them. I love clean edges,” John says.
There are further hidden lights in the room – for example, concealed uplighters in the pelmets above the cabinets. “They’re the ones you put on when you come down in the early morning with a toddler and it’s still dark – they’re not too offensive,” he laughs.
On the opposite side of the room, double pantry cupboards in the chimney breast alcoves add yet more storage. The cupboard on the right is full of toys at this stage, while the one on the left is John’s favourite feature…
The coffee pantry houses a coffee machine, smoothie-maker and toaster. “I didn’t think it would bring me so much joy, but it really does,” John says. It’s lined in oak and has a quartz worktop and integrated lighting.
More: How to Start a Kitchen Renovation
More: How to Start a Kitchen Renovation
The living room at the front of the house gets the evening light, so John widened the opening between the rooms and fitted glazed double doors to allow the kitchen-diner to benefit.
The golden artwork helps to bounce the light around in this slightly darker area. “It was an existing piece, so was thrown into the design mix,” John says.
The table extends for when friends come over, but, combined with the little children’s table, it’s just the job for the family at the moment. “We’ll probably get a bigger one when the kids get older, but for now it’s perfect,” he says.
The golden artwork helps to bounce the light around in this slightly darker area. “It was an existing piece, so was thrown into the design mix,” John says.
The table extends for when friends come over, but, combined with the little children’s table, it’s just the job for the family at the moment. “We’ll probably get a bigger one when the kids get older, but for now it’s perfect,” he says.
John kept the existing chimney breast to save money and linked the two pantry cupboards with a chunky oak shelf.
The couple are planning to turn the area to the left of the coffee pantry into a little reading corner.
Did you know you can keep track of communications, project schedules and daily logs through Houzz with the Client Dashboard feature? Just check if your pro uses Houzz Pro software.
The couple are planning to turn the area to the left of the coffee pantry into a little reading corner.
Did you know you can keep track of communications, project schedules and daily logs through Houzz with the Client Dashboard feature? Just check if your pro uses Houzz Pro software.
The dining area was previously a catch-all zone. “We used to teach yoga in the dining room during lockdown and there were no radiators or anything, so it was properly in need of love,” John says.
The old door into the kitchen, seen here far left, has been turned into a coats cupboard. In the centre is the original dining room door, and to the right you can see the glazed double doors in the newly opened up wall between the living room and dining area.
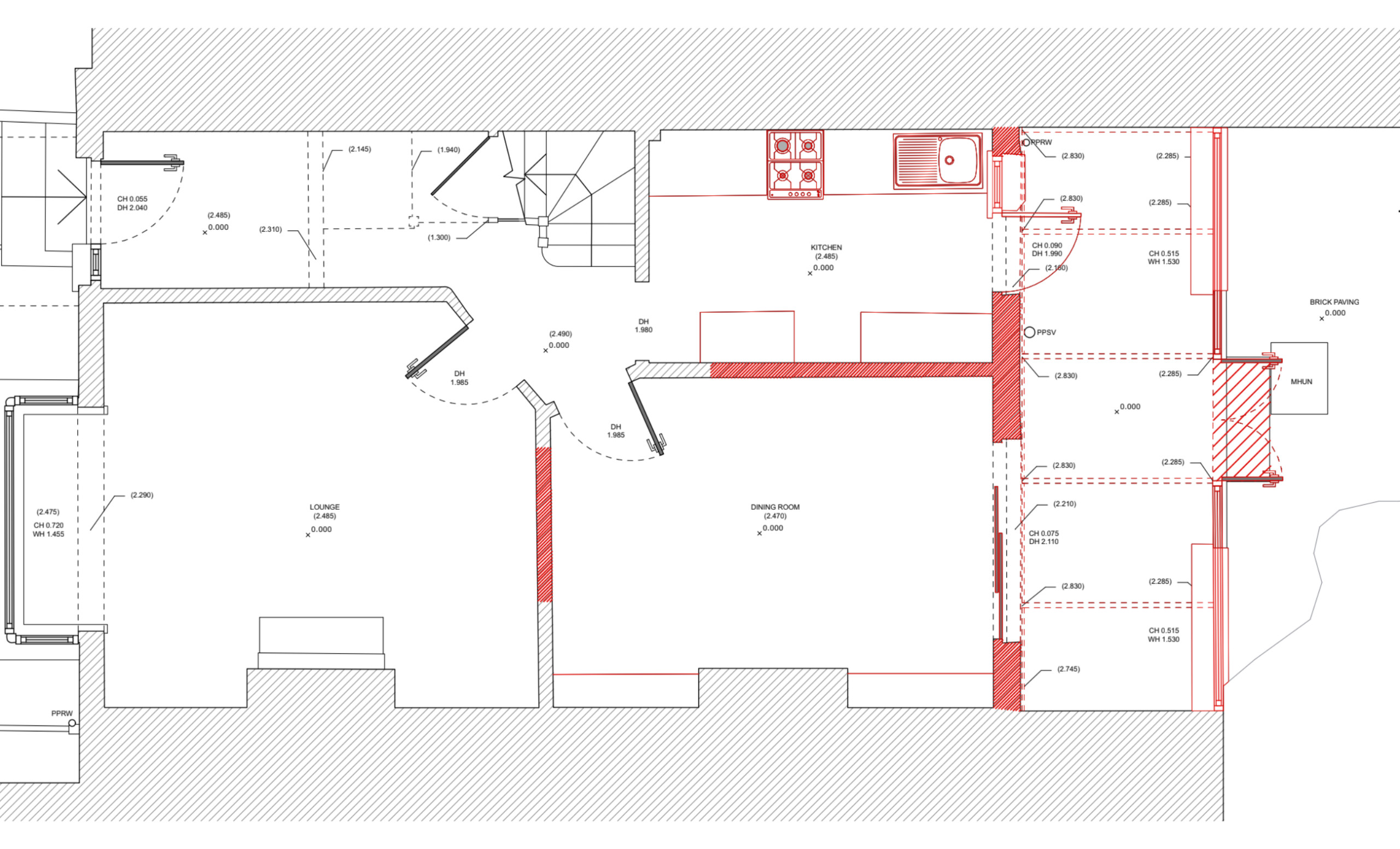
The former floor plan shows how the space was divided up before, with the walls to be removed marked in red.
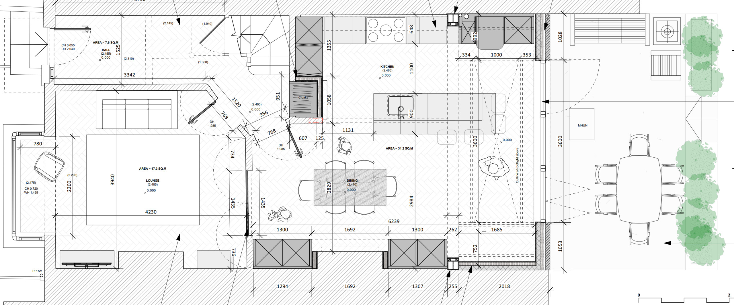
In the new plan, you can see how John has maximised storage – including the new coat cupboard - while still keeping plenty of circulation space for the young family.
John landscaped the garden with the indoor-outdoor mood in mind. A sandstone terrace sits flush with the kitchen-diner, while steps down to the lawn are bordered by raised planters filled with Verbena bonariensis, which flowers all summer.
The back of the house before works, showing the rickety conservatory.
For the sides of the new rear facade, John chose white glazed bricks with a carefully matched light buff mortar to help absorb the morning sun and radiate heat throughout the day. This also means the surface is pleasingly tactile.
“On extensions, you’re so close to the building that making it nice to touch is super-important, especially when it catches the sun,” he says. “It makes it much nicer.”
Tell us…
What do you like best about John’s design? Share your thoughts in the Comments.
“On extensions, you’re so close to the building that making it nice to touch is super-important, especially when it catches the sun,” he says. “It makes it much nicer.”
Tell us…
What do you like best about John’s design? Share your thoughts in the Comments.






















Who lives here? Architect John Crowley with his wife, two young children, and Devi the cat
Location Leigh-on-Sea, Essex
Property A 1930s terraced house
Room dimensions 31.2 sq m
Architect John Crowley of Anthro Architecture
Contractor Lina Construction
Project year The end of 2023
Photos by Ste Murray
Originally, what is now the kitchen-diner was divided into three spaces: a dining room, a narrow kitchen, and a very tired conservatory across the back. The space was fine initially, but less ideal once the couple started a family.
“We’ve been in the house for five years and lived in it perfectly happily with cellular rooms,” John says, “but then we had our first child and, once he started crawling, we realised it wasn’t suitable for a kid.”