Houzz Tour: A Small City Flat That Feels Spacious and Luxurious
Space-maximising ideas and cohesive design elements have elevated this compact period apartment
A good professional can be game-changing when it comes to renovating a property, so when you find one you can work well with, it’s wise to keep them in mind for future projects. That’s just what the owners of this two-bedroom flat did – they’d found Aflux Design through Houzz for their previous renovation, and hired them again to carry out a full refurbishment of their new purchase.
“It was an old flat and each room was separate,” interior designer Sara Ripamonti says. “We reconfigured the layout to create an open-plan living space, while leaving the bedrooms and bathrooms intact.”
To see more great projects where the homeowner found their professional via Houzz, take a look at our Born on Houzz series.
“It was an old flat and each room was separate,” interior designer Sara Ripamonti says. “We reconfigured the layout to create an open-plan living space, while leaving the bedrooms and bathrooms intact.”
To see more great projects where the homeowner found their professional via Houzz, take a look at our Born on Houzz series.
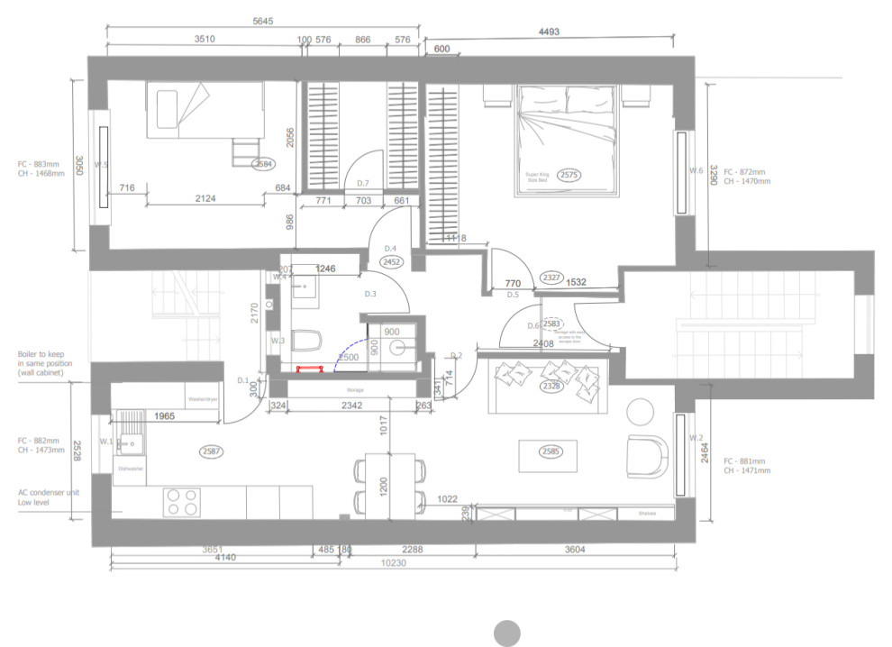
The floor plan shows how the removal of walls in the living area helped to create a more sociable open-plan space.
Find architects and interior designers on Houzz.
Find architects and interior designers on Houzz.
Practical storage makes the most of the narrow kitchen, with lacquered cupboards and drawers for crockery, pans, cutlery, a washing machine and the boiler.
Everything in the space has been chosen to maximise the area, including the streamlined undermounted sink, the sleek hob and the integrated extractor fan.
Kitchen cabinets and worktop, Kitchen Architecture. Hob and oven, Siemens.
Everything in the space has been chosen to maximise the area, including the streamlined undermounted sink, the sleek hob and the integrated extractor fan.
Kitchen cabinets and worktop, Kitchen Architecture. Hob and oven, Siemens.
A breakfast cabinet with plug sockets inside is perfect for stowing away small appliances and a microwave, so the worktops stay tidy.
The owners love the look and feel of real marble, so Sara incorporated this on the splashback. “They wanted something more durable for the worktop, so we went for Corian,” she says.
More: How to Curate Ideas for Your Kitchen Project
More: How to Curate Ideas for Your Kitchen Project
A black dining table and chairs add a contemporary contrast to the neutral walls. The table is compact enough to fit comfortably in the space, but it’s also extendable to accommodate extra guests.
The team’s joiner made use of a recessed wall opposite the dining table to build a dresser from veneered wood. “We wanted to create some decorative shelves and add a layer of lighting to the room,” Sara says.
The dining area leads directly into the living room, where the owners can relax and watch TV.
Sara built out the wall to conceal the TV cables and to add depth to the room. This wall has been coated in a specialist product that resembles microcement. It adds a soft texture to the room and replicates the bathroom, where microcement has been used on the walls, floor and ceiling.
TV wall painted in specialist limewash paint, Bauwerk. Frame TV, Samsung. Tense pendant, New Works.
Sara built out the wall to conceal the TV cables and to add depth to the room. This wall has been coated in a specialist product that resembles microcement. It adds a soft texture to the room and replicates the bathroom, where microcement has been used on the walls, floor and ceiling.
TV wall painted in specialist limewash paint, Bauwerk. Frame TV, Samsung. Tense pendant, New Works.
“The client wanted flooring that was quite resilient,” Sara says. They explored different options and finally settled on a laminate that has a realistic resemblance to wood.
Laminate flooring, Eaton Square. Sofa, BoConcept. Armchair, Case Furniture. Floor lamp, Gubi. Coffee table, Ethnicraft. Rug, Andrew Martin.
Laminate flooring, Eaton Square. Sofa, BoConcept. Armchair, Case Furniture. Floor lamp, Gubi. Coffee table, Ethnicraft. Rug, Andrew Martin.
To create a feeling of space in the flat, Sara had the interior doors made taller. She also removed the architraves to create a crisper, more contemporary look.
A wall of wardrobes provides plenty of storage in the main bedroom, while a pendant lamp prevents clutter on the bedside table and adds character to the room.
Bed, bedside tables, all Novamobili. Pendant, Lee Broom. Rug, Benuta.
Bed, bedside tables, all Novamobili. Pendant, Lee Broom. Rug, Benuta.
Sara’s joiner built a floating desk/dressing table for the bedroom using the same veneered wood as in the dining area.
About A Chair, Hay.
About A Chair, Hay.
The children’s bedroom is kitted out with practical bunk beds, but wall lights and sockets have been installed to fit either side of a double bed in the future.
The wall mural behind the bunk beds is wallpaper that’s been custom-made to fit the dimensions. Sara painted the adjacent walls and ceiling in a similar blue to create a frame around the design.
Bunk beds, Cuckooland. Wallpaper, Hovia. Surround painted in Blue Blood, Paint & Paper Library.
The wall mural behind the bunk beds is wallpaper that’s been custom-made to fit the dimensions. Sara painted the adjacent walls and ceiling in a similar blue to create a frame around the design.
Bunk beds, Cuckooland. Wallpaper, Hovia. Surround painted in Blue Blood, Paint & Paper Library.
Microcement walls, floor and ceiling give a soft feel to the bathroom and are complemented by a vanity unit covered in a practical marble-effect surface.
Vanity unit and basin, Lusso Stone.
Vanity unit and basin, Lusso Stone.
A shower fits neatly into a recessed area and Sara used marble-effect tiles here rather than microcement to make the enclosure stand out.
The owners love the finished project, and are really pleased with how the team at Aflux have created such a practical and comfortable space.
Shower fittings, Vado. Shower enclosure, GH Interior Glass. Porcelain tiles, CMG Finishes.
Tell us…
What’s your favourite element in this flat? Share your thoughts in the Comments.
The owners love the finished project, and are really pleased with how the team at Aflux have created such a practical and comfortable space.
Shower fittings, Vado. Shower enclosure, GH Interior Glass. Porcelain tiles, CMG Finishes.
Tell us…
What’s your favourite element in this flat? Share your thoughts in the Comments.




















Who lives here? A family
Location London
Property A period flat
Size Two bedrooms and one bathroom
Designer Sara Ripamonti of Aflux Designs
The front door of this bijou apartment leads straight into the kitchen and dining area, so it was important to create a calm, clutter-free space for the owners and guests entering the room.
The galley kitchen has a minimal design, with handleless doors to avoid too much visual clutter. “We also installed tall units directly opposite the front door, so you don’t immediately see the kitchen worktops as you enter,” Sara says.
Walls painted throughout in Wevet, Farrow & Ball. Dining chairs, &Tradition.