Houzz Tours
House Tours
Houzz Tour: A 1960s Bungalow Gets an Airy, Biophilic Redesign
Built-in planters, organic shapes and varied textures define the calming interior of this eco-sensitive building
The owners of this former bungalow, both of whom work in the environmental sector, wanted to create the most sustainable home they could afford. With their architect, they reimagined the property, enhancing it not only by adding a whole new floor, but also by incorporating a full home automation system, an air source heat pump (ASHP), a mechanical ventilation with heat recovery system (MVHR), rainwater harvesting and a green roof.
Having created a building that would be low-carbon to live in and run, they called on interior designer Karen Knox of Making Spaces to help them create an interior that would focus on wellness by bringing in lots of light, views and greenery.
Having created a building that would be low-carbon to live in and run, they called on interior designer Karen Knox of Making Spaces to help them create an interior that would focus on wellness by bringing in lots of light, views and greenery.
“Scientific research shows it’s psychologically and physiologically beneficial for human beings to regularly connect with the natural environment and greenery,” Karen says. “And exposure to the colour green can actually lower your heart rate, pulse rate and blood pressure.”
As one of several foliage-forward interventions, Karen designed a planting trough into the end of the kitchen peninsula (more on this below) to bring in greenery visible from both sides. “It softens the lead into the living space and kitchen,” she says. “It also stops this spot becoming the place where people put their bags when they come in.”
The doorway to the right of the front door leads into a utility/boot room. When the door is closed, it’s invisible, hidden within the wood panelling.
At the centre of the L-shaped kitchen there’s a large island with an induction hob and downdraft extractor. The sink is tucked away, just beyond the greenery.
Microcement flooring, Forcrete.
As one of several foliage-forward interventions, Karen designed a planting trough into the end of the kitchen peninsula (more on this below) to bring in greenery visible from both sides. “It softens the lead into the living space and kitchen,” she says. “It also stops this spot becoming the place where people put their bags when they come in.”
The doorway to the right of the front door leads into a utility/boot room. When the door is closed, it’s invisible, hidden within the wood panelling.
At the centre of the L-shaped kitchen there’s a large island with an induction hob and downdraft extractor. The sink is tucked away, just beyond the greenery.
Microcement flooring, Forcrete.
The green trough frames views on both sides: the sliding doors you can see here lead onto the back garden. Turn around and you’d be looking at the glazing to the front garden (the glass doors behind the blinds in the first photo).
Karen created the planter by sinking a trough sink into the worktop, meaning the potted plants can drain easily when watered.
The railings above are part of the open first floor landing.
Kitchen trough, ABI Interiors. Silestone Yukon worktop, Cosentino.
Thinking of renovating? Find everyone you need, from interior designers to builders, carpenters and decorators, on Houzz.
Karen created the planter by sinking a trough sink into the worktop, meaning the potted plants can drain easily when watered.
The railings above are part of the open first floor landing.
Kitchen trough, ABI Interiors. Silestone Yukon worktop, Cosentino.
Thinking of renovating? Find everyone you need, from interior designers to builders, carpenters and decorators, on Houzz.
This is the view facing the other way, looking towards the front garden – this time with the blinds up. “You can run between these and the doors to the back garden,” Karen says. “It’s lovely when you have both sets open at once.
“The aim was to not make the kitchen feel too ‘kitcheny’,” she continues. “The owners were originally thinking of black or dark blue cabinets, but I said that would really jar with the rest of the space. This is much more pared back.”
The right hand tall units (just visible) are Fenix-faced and colour-matched to blend in with the paintwork in the space. “That run almost disappears into the wall and the room,” Karen says. The wood-fronted units were chosen to lend a furniture-type feel.
Doimo Cucine kitchen, Four Seasons Kitchens.
“The aim was to not make the kitchen feel too ‘kitcheny’,” she continues. “The owners were originally thinking of black or dark blue cabinets, but I said that would really jar with the rest of the space. This is much more pared back.”
The right hand tall units (just visible) are Fenix-faced and colour-matched to blend in with the paintwork in the space. “That run almost disappears into the wall and the room,” Karen says. The wood-fronted units were chosen to lend a furniture-type feel.
Doimo Cucine kitchen, Four Seasons Kitchens.
Karen laid out the kitchen to maximise storage. A favourite feature is the cabinet at the outside end of the peninsula containing what she calls ‘life drawers’. “This is where the owners can stash everything from bits of Blu Tack to the back door key and letters from school that need a response,” she says. “It’s all that stuff you always end up piling on the worktop.
“I always go through storage really thoroughly with owners and ask them, ‘Where are you going to put that?’ Try to work it out retrospectively and you’ll inevitably end up short or with an empty cupboard that’s too hard to reach for its intended purpose,” she says.
“I always go through storage really thoroughly with owners and ask them, ‘Where are you going to put that?’ Try to work it out retrospectively and you’ll inevitably end up short or with an empty cupboard that’s too hard to reach for its intended purpose,” she says.
The original kitchen, shown here, was in roughly the same location as the new one, but the external walls have all been moved.
Discover why you should hire a professional who uses Houzz Pro software.
Discover why you should hire a professional who uses Houzz Pro software.
Seeing the open-plan space from this angle gives you a good sense of the layout.
The extendable oak table can seat up to 10. The bench next to the curved wall can be pulled in for extra seating, meaning there’s no need to find space to store four additional dining chairs.
Lunar fabric pendant lights, Litecraft.
The extendable oak table can seat up to 10. The bench next to the curved wall can be pulled in for extra seating, meaning there’s no need to find space to store four additional dining chairs.
Lunar fabric pendant lights, Litecraft.
Behind the dining table is a pair of pocket doors, which hide a play area for the couple’s son. “I wanted a complete contrast and a strong colour for in here, and green was the obvious choice,” Karen says.
She designed all the joinery here. The cut-out handles in the cupboards not only look good, they removed the need for buying hardware, too. And, as they don’t protrude, there’s no risk of catching yourself on them and the space feels more streamlined. Little touches like this all add up to make the space feel calmer.
Playroom walls painted in Puck, Little Greene. Rug, Rugvista.
She designed all the joinery here. The cut-out handles in the cupboards not only look good, they removed the need for buying hardware, too. And, as they don’t protrude, there’s no risk of catching yourself on them and the space feels more streamlined. Little touches like this all add up to make the space feel calmer.
Playroom walls painted in Puck, Little Greene. Rug, Rugvista.
This photo is taken from the other side of the playroom pocket doors, painted the same green as the walls.
In the distance, just to the left of the TV wall, you can see a glimpse of the doorways into the downstairs shower room, with a second entrance to the utility/boot room on the left. Running behind the television, a corridor leads to the ground floor bedroom, from which you can also access the shower room, and to a home office (not pictured).
In the distance, just to the left of the TV wall, you can see a glimpse of the doorways into the downstairs shower room, with a second entrance to the utility/boot room on the left. Running behind the television, a corridor leads to the ground floor bedroom, from which you can also access the shower room, and to a home office (not pictured).
Although it’s an architectural detail, the curved wall is Karen’s design and, again, ties into the wellbeing focus of the home.
“This was originally a sharp corner and it’s close to the playroom. I felt it wasn’t a nice thing to manoeuvre around, especially for a child, but also for adults, so I softened it with a curve,” she explains.
“This was originally a sharp corner and it’s close to the playroom. I felt it wasn’t a nice thing to manoeuvre around, especially for a child, but also for adults, so I softened it with a curve,” she explains.
There’s another significant curve on the opposite side of the open-plan room, where Karen designed this bench in the lounge area. Its radius matches exactly that of the curved wall, which is diagonally opposite.
“The wall would slot in perfectly if you could move it across the room, and that makes me really happy,” she says. “Houses are rectangular by nature, so if you can get some curves in, all the better.”
Karen tweaked the architect’s original plans to make the glazing on the left lower, so it would work as a place for this cosy window seat. “It’s a good spot,” she says. “You can face the sofa from it or talk to someone in the kitchen or just look out at the garden. Having little additional spaces, especially in an open-plan area, is really nice.”
Sofa and footstools, BoConcept. Barkly table lamp, Abigail Ahern. Ceramic succulents on wall, owners’ own.
“The wall would slot in perfectly if you could move it across the room, and that makes me really happy,” she says. “Houses are rectangular by nature, so if you can get some curves in, all the better.”
Karen tweaked the architect’s original plans to make the glazing on the left lower, so it would work as a place for this cosy window seat. “It’s a good spot,” she says. “You can face the sofa from it or talk to someone in the kitchen or just look out at the garden. Having little additional spaces, especially in an open-plan area, is really nice.”
Sofa and footstools, BoConcept. Barkly table lamp, Abigail Ahern. Ceramic succulents on wall, owners’ own.
There’s another built-in planter in this corner next to a TV that doubles as artwork when turned off.
Frame TV, Samsung.
Frame TV, Samsung.
The back of the bungalow as it looks now. From the left, the doors and windows on the ground floor are: the playroom; the open-plan area sliding doors; the window seat; a home office behind the corner window, then the guest room’s glazed doors.
Upstairs, the black clad roof extension contains the principal bedroom and en suite, while the window beneath the pitched roof is the son’s bedroom.
Upstairs, the black clad roof extension contains the principal bedroom and en suite, while the window beneath the pitched roof is the son’s bedroom.
On the ground floor at the front of the house, there’s a separate living room, colour-washed in a deep green with walnut wrapping the joinery. Even the blind is green, carefully matched to the shade of the paint.
“Like the rest of the home, the floor-to-ceiling curtains are automated,” Karen says. “The curtains all over the house close if the sun’s shining through on a south-facing wall to moderate the heat. When these ones are closed, it feels like a cinema – you’re completely cocooned.” And not just visually but audibly, too – the room has surround sound built in.
Green chair, La Redoute. Loer pendant, Tom Raffield.
“Like the rest of the home, the floor-to-ceiling curtains are automated,” Karen says. “The curtains all over the house close if the sun’s shining through on a south-facing wall to moderate the heat. When these ones are closed, it feels like a cinema – you’re completely cocooned.” And not just visually but audibly, too – the room has surround sound built in.
Green chair, La Redoute. Loer pendant, Tom Raffield.
Behind the sofa, Karen added real cork wallpaper. “It’s great for acoustics and warmth,” she says. “We wanted this room to feel almost as if you were in a forest.”
Cork wallpaper, Osborne & Little. Sofa, Sits.
Cork wallpaper, Osborne & Little. Sofa, Sits.
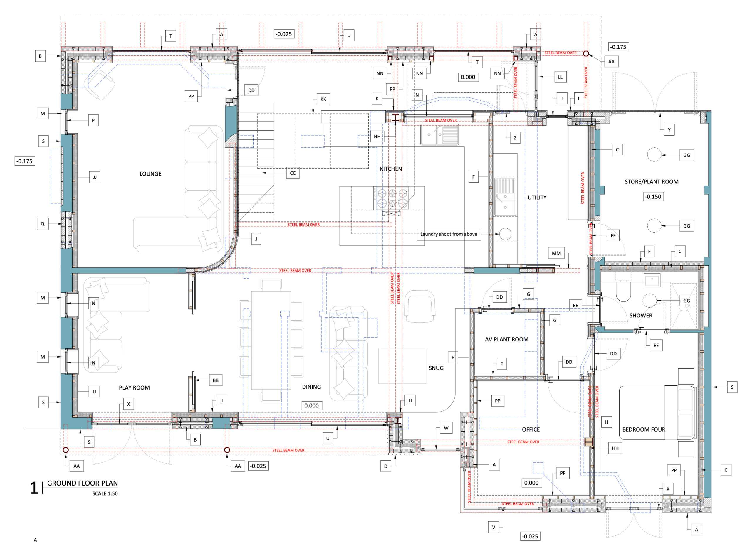
The living room is located where the ‘reception’ room was on this original plan (bottom left).
Much of the original building was demolished and rebuilt to a new floor plan. This was, in large part, due to the need to house the new services, including the MVHR, ASHP, rainwater harvesting and home automation systems.
Much of the original building was demolished and rebuilt to a new floor plan. This was, in large part, due to the need to house the new services, including the MVHR, ASHP, rainwater harvesting and home automation systems.
This is the old reception room, now the living room.
The new floor plan is radically different, as many of the original external walls are newly located. The living room is labelled ‘lounge’.
Lights throughout the house turn on and off automatically and, in this downstairs shower room, Vivaldi plays when you walk in. “It’s so much fun,” Karen says.
The room has no external window, though there is some natural light via a sun tunnel, just seen reflected in the shower screen. Talking of which, this piece of safety glass was cut to order and Karen had it recessed into wall and floor channel, so as not to have any fixings on show.
Brassware and sanitaryware, Lusso Stone. Tiles, Mandarin Stone. Floor tiles, Parkside.
The room has no external window, though there is some natural light via a sun tunnel, just seen reflected in the shower screen. Talking of which, this piece of safety glass was cut to order and Karen had it recessed into wall and floor channel, so as not to have any fixings on show.
Brassware and sanitaryware, Lusso Stone. Tiles, Mandarin Stone. Floor tiles, Parkside.
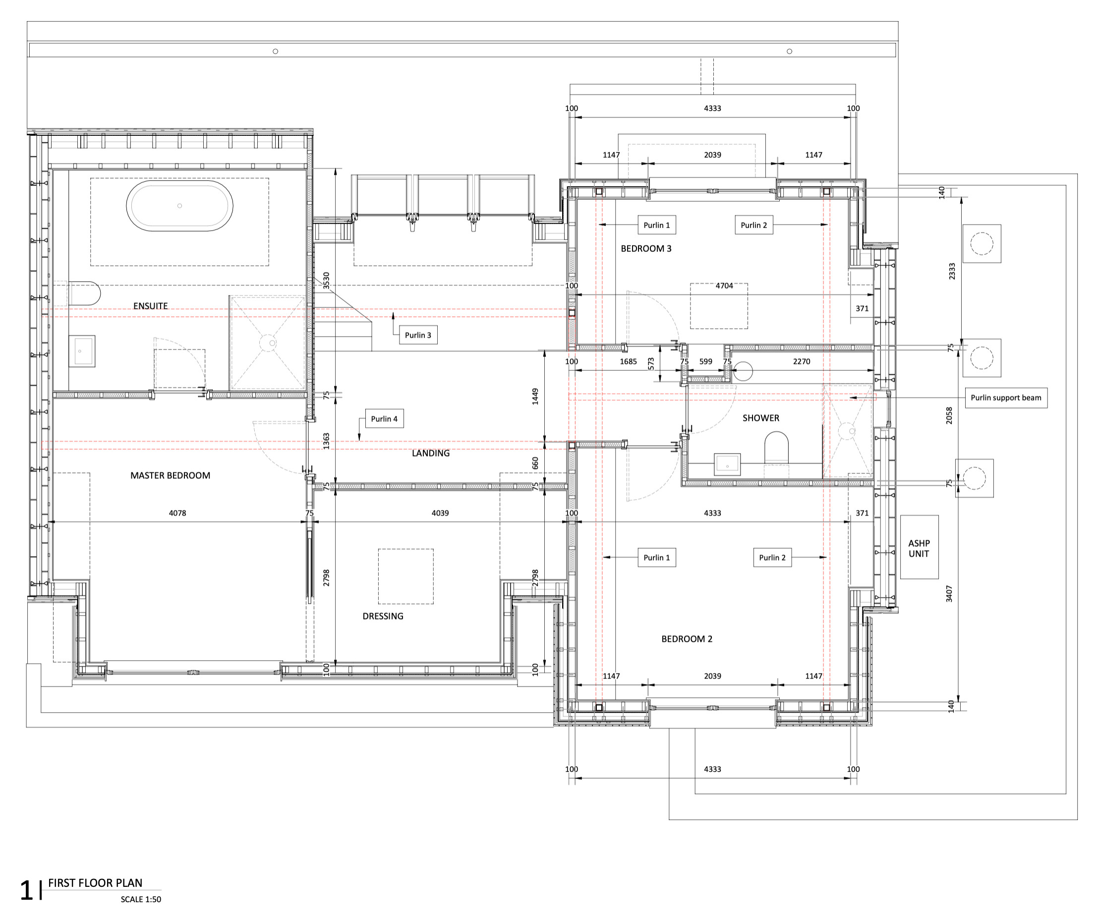
The upstairs, shown in this floor plan, didn’t exist in the original house.
Karen has given this floor the same calming, texture-filled treatment.
Karen has given this floor the same calming, texture-filled treatment.
Clever panelling behind the bed in the principal bedroom not only adds texture, interest and a built-in headboard, it also conceals extensive storage, as well as equipment for the home automation system and other services.
The top half of this wall opens up to reveal cupboards; the horizontal oak strip is angled, so you can get your fingers inside it to open up the doors above. Bespoke bedside tables are made from oak and float for a minimal look.
What looks like just a bedside light switch – the white square on the wall next to the bed – is also a control for the sound, the room’s temperature and the curtains. These windows overlook the back garden.
Ballet Plié pendant, Heal’s. Walls painted in Joanna recycled paint, Re:mix at Little Greene.
The top half of this wall opens up to reveal cupboards; the horizontal oak strip is angled, so you can get your fingers inside it to open up the doors above. Bespoke bedside tables are made from oak and float for a minimal look.
What looks like just a bedside light switch – the white square on the wall next to the bed – is also a control for the sound, the room’s temperature and the curtains. These windows overlook the back garden.
Ballet Plié pendant, Heal’s. Walls painted in Joanna recycled paint, Re:mix at Little Greene.
The biophilia theme continues in the principal en suite with a moss wall behind the mirror, as well as shelf space for more potted plants.
The suite spans the side of the house from front to back and the window in here overlooks the front garden and across the treetops.
Reeded oak vanity unit with composite top, Harvey George. Preserved moss wall, Highland Moss. Bath, Lusso Stone.
The suite spans the side of the house from front to back and the window in here overlooks the front garden and across the treetops.
Reeded oak vanity unit with composite top, Harvey George. Preserved moss wall, Highland Moss. Bath, Lusso Stone.
The en suite is a large room and has space for this generous walk-in shower.
The room also has a freestanding bath, which sits beneath a trio of skylights, maximising the potential for bathtime relaxation.
The brief for the interior was that it should feel calm. So, did it do the job? “The owner told me she’d never felt so calm at home,” Karen says. “Mission accomplished.”
In a review, the owners added, “Karen is a superb interior designer, but it goes way beyond that. She’s a space planner, a translator, a project manager, and a phenomenal seeker of great design ideas that matched what we needed in our home.”
Tell us…
Which is your favourite idea in this calming house? Let us know in the Comments.
The brief for the interior was that it should feel calm. So, did it do the job? “The owner told me she’d never felt so calm at home,” Karen says. “Mission accomplished.”
In a review, the owners added, “Karen is a superb interior designer, but it goes way beyond that. She’s a space planner, a translator, a project manager, and a phenomenal seeker of great design ideas that matched what we needed in our home.”
Tell us…
Which is your favourite idea in this calming house? Let us know in the Comments.






























Who lives here? A couple and their primary school-aged son
Location North Leeds, West Yorkshire
Property A substantially rebuilt 1960s bungalow
Size Four bedrooms and three bathrooms
Designer Karen Knox of Making Spaces
Project year 2022-2025
Architect Mesh Architects
Smart home automation Potes
Photos by Esther Clow/UK Locations and Karen Knox
The bright, airy feel of the house is apparent as soon as you walk in the front door and are greeted by this view. Cedar panelling on the left brings organic texture, as do the steam-bent ash pendant lights ahead.
On the right, behind large blinds – colour-matched to blend in with the walls – are sliding doors opening onto the front garden.
Verso steam-bent ash pendant lights, Tom Raffield. Walls and ceilings painted in Linen Wash, Little Greene.