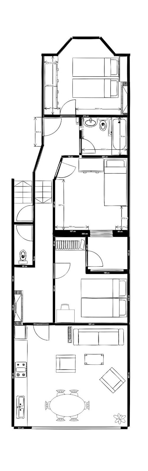
Do you have any ideas on how this floorplan could be improved around the bedroom/living room/kitchen area?
The bedroom next to the kitchen can be remodelled. Also could there be a better way to arrange the kitchen/living room area with a different kitchen and furniture set up?
Related Discussions
Need help with my kitchen extension
Q
Looking for decorating ideas
Q
Floor plans- any ideas?
Q
Floorplan help needed for 40m2 extension and existing house.
Q