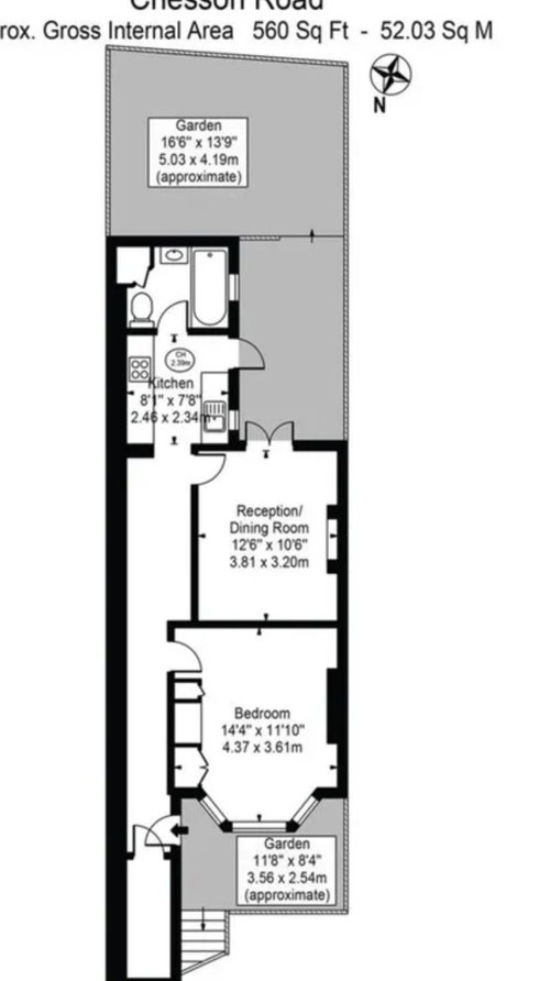
4 Storey house with a flat at thet bottom
last month
Featured Answer
Sort by:Oldest
Comments (9)
- last month
- last month
Related Discussions
Any ideas for final touches to this living/dinning room?
Comments (51)Just a quick note to thank you all for sharing your thought, ideas, experience and time. I especially want to thank Bluenan and decoenthusiaste for being with me through the all process for the last 6 months or so..., just wanted to post few photos of the results (https://www.houzz.com/discussions/any-ideas-for-final-touches-to-this-living-dinning-room-dsvw-vd~569586) as I feel it is not only me who created this space but it is your creations as much as mine. It may not be perfect or according to the the "Rules", but it is Me and my family. Each and every piece was chosen by me in different parts of the world and each one of them has a unique story behind. I am very pleased with my space. I love it! I am very blessed. .... and so I am off to my new project now... Back to school.... that's really going to be hard ;) Thank you all, once again....See MoreMezzanine Design
Comments (2)HI -- I put a picture on my idea book for you (last one) . I think something like that would look great and not visually close things in . You would have to have the glass in a sliding by pass panels rather than folding . You could also have the glass frameless rather than the thin black framing , but I like the black for the interest it adds....See MoreDifficult patio space
Comments (2)You can go far enough out on your slope so the vertical distance from the ground at your existing terrace and the slope is 3' or less. There are lots of retaining wall systems you can DIY there at the 3' limit and backfill to level a larger area. You might take in dirt when someone excavates for a pool, for instance - contact the pool contractors in your area and offer to take dirt for them as spring comes. you can also borrow the dirt from your own land further out. Once you make a larger flat area, treat the area where it slopes off from it with some thoughtful planters surrounding 6-10 wide / 4' deep "stairs" . Your leveling above will make the transition area a bit more steep . . so use this area for kitchen garden / raised beds that you sit at from the terrace side and walk up to from the bottom. The slope between should be stairs and on the outside edges you can use groundcover or plant more edibles. Then you'll always have herbs near the kitchen. The stairs will be large and wide enough to provide more seating or even be a play stage with audience arrayed below. Consider shade and where you want it when you plant trees. Deciduous trees are wonderful in colder climates as they give shade only in the summer and then provide architecture but no leaves for allowing winter sun in . . . Think of the land as a series of "rooms" with functions. The larger flat area will allow you to provide a dining terrace behind the grill area and expand your seating where you have the french doors. Your dining area might benefit from a pergola / open frame / trellis above that eventually you grow some lovely pole beans up on. . ....See MoreWhich frames for above the bed?
Comments (103)Hi snan - to address your questions: 1 - yes, the lamps work very well. With regard to the height of the larger lamps: do you know how high they would be? If the bottom of the lampshade is even with the top of the pillows that should work. If they are taller than that I think you will be okay with the smaller lamps. Look back again at some of the pictures above to see what I mean. The thing that will look odd would be if the top of the lamps were taller than your headboard. The idea is that when you are in bed reading a book that you want the light to be able to reflect down. As far as the lampshade size goes on the smaller lamps I'm thinking the shorter ones since they don't seem to drop down as far as the larger ones. 2 & 3-Definitely chair by the mirrored bedside locker with one white locker on the other side. Without question. The chair to the left of the bed gave the room life. Use the extra white one in a closet or another room. You don't want to overcrowd your room when you are going for a tranquil setting. 4-Absolutely okay to have bedside tables that don't match and look good in the room. Whether or not you like that is a personal preference though. I would only put the mirrored one next to the bed though if you have the chair next to it. It's how they play off each other that makes it work. If you don't keep the chair next to the bed then I would use both white tables beside the bed. It is also fine that the pictures are off-centre to the wall as long as they are centered to the bed. :)...See More- last month
- last month
- last month
- last month
- last month
- last month

Sponsored
Reload the page to not see this specific ad anymore


katlucy