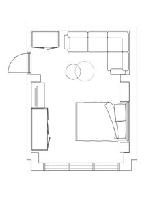
currently working on this tricky bedsit. Any ideas as to the best layout to incorporate a bed and small lounge area. Would also need to accommodate some sort of shelving for books.
kallax unit is customizable you can use lower space for shoe storages, mid for more clothes and upper for books depends on your item just need to buy 9 same style storage box that you like, or let the book become the centerpiece of living space by building shelves with LED,
Recommend :
1.Cupboard with mirror or sticker mirror on its door
2.swivel tv mount so you can adjust the angles wherever you watch from sofa or bed
3.Queen Size loft bed, its like bunk bed but theres no bed on below, you can use it for wardrobe area
Better larger living area and smaller sleeping space for comfort in darker area for fast asleep, beside you will need more area to do activity when you are awake rather than when sleeping,
curtain for privacy if you have guest/sleepover like siblings that you dont want to share bed with or friend you are not comfortable to be that close,
If buying normal bed the space under the bed can be used as storage then it will be good, many are custom made but now there's Ikea under bed storage.
You can place small tall faux plant on the corner of the sofa like bamboo palm,
well god bless IKEA you can find all my furniture suggestion there just dont forget measuring each side of your room when choosing furniture
Jonathan
Devyra Atelier
Related Discussions
Need help with sofa choice for living room
Q
Main bath (guest) layout design
Q
ideas for extension layout
Q
Win a design consultation at The permanent tsb Ideal Home Show!
Q