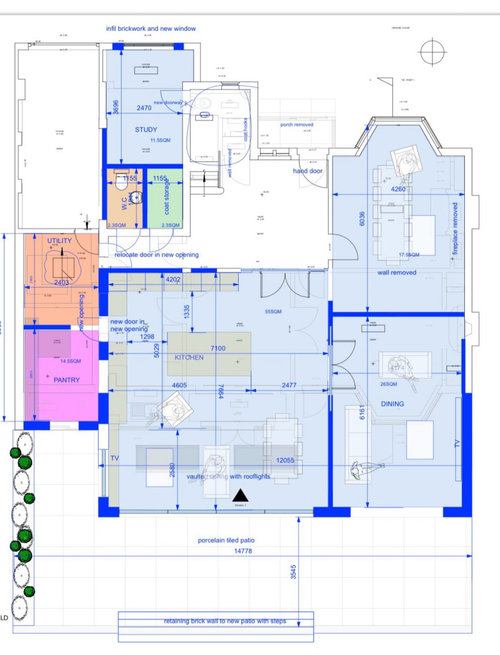
Hello, I know there are always good ideas given here. Wondering if you can help the new project. Please see my new ideas of the renovation proposal. There is a ground floor renovation and two options upstairs,Option A or B.
Personally everything feels a little off, maybe too square kitchen living and the door directly off the kitchen into the living room? I'm just not sure? Any help much appreciated as always!
Devyra Atelier
Helen COriginal Author
Related Discussions
New extension Kitchen/Dining room layout
Q
Kitchen layout for a new build
Q
bathroom layout... HELP New Build
Q
new bathroom layout
Q