Hi everyone,
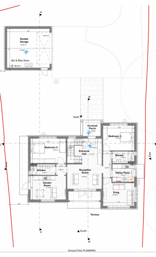
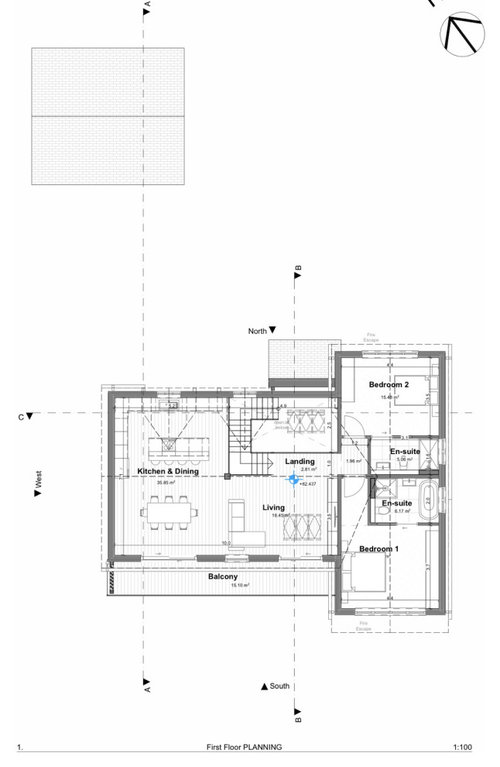
I’m currently developing a new build upside-down house (living spaces and two main bedrooms are upstairs) and would love to get some feedback on the design. I’ve attached the current drawings and would really appreciate any suggestions for improvements.
Whether it’s layout, functionality, flow, natural light, or even smaller design details, I’d really appreciate your thoughts. Sometimes the best ideas come from seeing things from a different perspective!
Thanks in advance for taking the time to look and share your insights – it will really help me make this home the best it can be.
Anna
Wayne Prest
Devyra Atelier
Related Discussions
House build in Ireland
Q
building a new home
Q
Heating a new build, all experiences (good or bad) wanted.
Q
Heating for a new build, advice needed
Q
Jonathan
Devyra Atelier