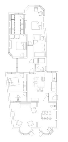
We’d Love Your Creative Eyes on Our Home Layout!
5 months ago




Featured Answer
Sort by:Oldest
Comments (17)
- 5 months ago
Related Discussions
Make my room more impressive
Comments (127)Lots of ideas....couldn't resist adding my two cents. i copied your photos and did a little cut and paste- it's messy, but hopefully gets the main idea across. i'd put your sofa in front of the large book case, chair by the fireplace, tv on the stand on the wall opposite the fireplace - so you can either look at the fire or the tv. Someone suggested using frames of one color for your photos - an inexpensive way to do that would be to spray paint them all a dark color-black goes with everything. Since your shelves are a medium tone wood, display things that are dark or light so that they contrast against the wood. Limiting your display items pallette to a few values usually helps to unify things. (I think that's why so many people want to paint the shelves or put inserts in the back to help your nice things read more clearly...some get lost). If you want to "splurge" -you may consider having a carpenter make a few solid tall cabinet doors to provide a visual break in the shelving. I'm showing 3 doors - 1 on the right side of the fireplace and 2 on the left to leave two open vertical shelves for display on each side - with things arranged to frame the fireplace as the focal point. To add some height to your big vases, consider stacking some books beneath them. Enjoy experimenting untill you get something you're happy with - good luck!...See MoreAny suggestions for our ground floor layout?
Comments (14)Jen, are you sure everything is in proportion? I'm asking, because that store seems to be just a bit wider than a door (so about 1 m) which is fine, but doesn't give much space to manoeuvre inside it. Also, a bit too many doors in a small space, but I'm afraid I can't offer you a remedy for that. You have two wide, massive windows and a door in between, I think that will give plenty of light. Personally, I'd just add skylights or a glass roof. Or a long strip of glass all along What you don't seem to have is ventilation windows. Trust me, you're going to want one in the utility, or at least a good fan. Transom style windows could work too if you can open them. I really wish you'd see an architect... there are lots of different, small things that a professional can spot from miles away that you wouldn't even consider. As I said, I regret we didn't; our house is great, but it could've been even better!...See MoreMoving home for two disabled women
Comments (35)not alot happening at the moment, its winter! alotta rain, lotta. but i am bedding down to get this over with and maybe in the spring the spirits will rise once more. i hope so. i would love to feel i was doing something to keep my hopes and dreams alive, i dont see what i can do until the spring. when i bring the topic up, especially to those that moved away and came down this neck of the woods, they say they had friends who felt it was too far too and moved back home. i guess thats how i feel, thats what i want and i just want to be a bit more uplifted, i think rain dampens down things a bit!!! santa Ma Margaret!...See MoreWhole house re-decor , for sale purposes
Comments (33)Hello Duncan, They are good and I am biased as I don't use companies that don't provide trade discount... as I usually like to help my clients out... Here's a few images and an edging on a runner can be lovely too... I have also included one of a painted stair... So you have an option all of which are rather striking.... : )) x http://www.naturalrugstore.co.uk/coir-rugs.asp?gclid=Cj0KEQjwiKS3BRCU-7XQ75Te3NoBEiQAA2t_xPmcwAZ3TS0Qhq1t1hzYsP-r8oFgdC385qXO88eXioYaAjCE8P8HAQ The painted one... I would include the banister in this scenario.....See More- 5 months ago
- 5 months ago
- 5 months ago
- 5 months ago
- 5 months ago
- 5 months ago
- 5 months ago
- 5 months ago
- 5 months ago
- 5 months ago
- 5 months ago
- 5 months ago
- 5 months ago
- 2 months ago
- 2 months ago

Sponsored
Reload the page to not see this specific ad anymore









katlucy