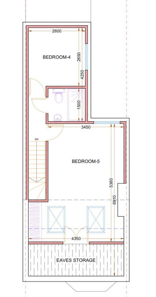
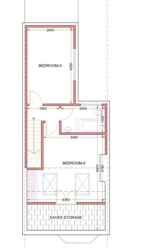
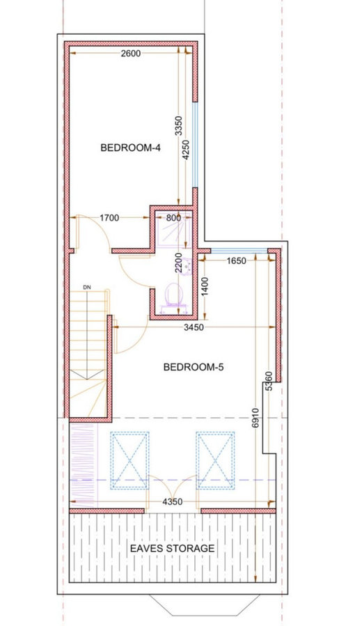
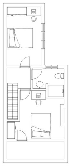
Please help us choose the best loft layout for our Victorian terrace
7 months ago
last modified: 7 months ago
Featured Answer
Sort by:Oldest
Comments (8)
- 7 months ago
- 7 months ago
Related Discussions
Awkward kitchen (1)
Comments (16)My 2¢ worth: first of all replace the dark blinds with translucent cordless single cell blinds in ivory or off-white--they let light through and provide privacy + some insulation from cold or heat. Clean, crisp look.That alone will brighten up this space. #2: clear the counterspace!--so much clutter! Where to put all these appliances that get little daily use? Get yourself a ss 24x20 or larger cart on wheels (see Amazon.com--Seville classic ss cart) and store little used, bulky appliances on its shelves--and roll the cart into a nearby coat closet--out of sight and way-- to be wheeled back when needed or individually carried back as needed. 3#gorgeous blue tiled walls.Don't touch them. #4:Walls: keep as is if off-white--not same as trim white white.Just a fresh coat needed.To make it "disappear," paint the radiator the same color as the wall behind it. #5Keep the white trim white--looks bright and clean.Keep kitchen door white. You might want to stop here and make no further changes #6Cabinets: I like Gast pic above on right, but too much blue for your blue-tiled kitchen...IMO. I'd go cooler and lighter...consider the light gray of the beadboard in the Gast pic above right. Beautiful hue. Don't go for the white white everyone clamors for these days.Too stark for your kitchen and too contrasty with the blue tile, too country kitchenish. #7. cabinet hardware: Look like glass knobs in pics. Go for knobs/pulls like in the Gast pic above--or similar in pewter or ss, my preference. Those "modern" ss bar handles don't work with your cabinets. #8 the round table is not a good fit against the wall. Get a small sq or rectangular ss or butcherblock-top table for that spot. Chop off the top tier of your chairs to shorten....and match their tops as they are now so's won't appear to take up so much visual space and still remain comfy--don't replace w/ uncomfortable stools.Keep white. #9. Do away with wood valance over sink window.Too country. #10 Countertops--solid color Corian type or laminate--depends on budget--don't want busy stone textures of quartz, etc. Consider a medium value cool gray. (Or maple butcherblock?). Can't see color/texture of floor.... hope some of this helps. Good luck! lisianthus' pic tho nice is too busy-cutesy for your minimalist aims IMO...See MoreMy Before and After picture for my garden
Comments (95)It makes me cross that people think they have a right to make some quite negative comments on this post. Masmccar76 put these photos on because she thought people would like to see a genuinely lovely transformation of her garden. Instead there have been some downright nasty comments. By all means make comments but keep them constructive. Houzz is all about is sharing ideas, not about being nasty...See MoreOur new home
Comments (20)Please, please, please, don't paint any of the wood. You have a beautiful setting for mid century modern décor. I can agree with removing the carpet from the stairs, however I would just want to add a jute floor covering for the stairs after. The light fixtures should probably both be changed. You even have a lovely roomy space in your foyer. I always recommend starting with the foundation of the room, which is the floor covering. Kilim, ikat, Persian or Oriental would be my choice. I would think minimalist would be very fitting in this space....See MoreNew house kitchen layout
Comments (12)I see what you mean, It's a good idea in theory, however, practically, I don't think it's going to work, and you will end up ruining the nicest room in the house. There are no walls that remain unbroken by doors or windows, so where are you going to put units and unbroken worktop space. They can't go on the left as there are three doors. There's a door on the right, which although you could put a unit and a bit of worktop back right, it wouldn't be very big, and the biggest run of wall goes straight down to the glass doors, so you probably can't and wouldn't want to go straight up to them. You could move the door into the hallway from the front end to the bottom end by the patio doors and this would give you a better run of wall. If you put an island in the middle, 5' into the room to give yourself room to walk in and gain more worktop, it'll only leave you with around 6' at the other end for a dining space. However, i'd still advise getting a kitchen planner onboard before you start, as i'm not convinced the room is big enough to achieve what you want with the available wall space, and it stands a good chance of spoiling a very nice and elegant entrance to a house. The other big problem is the plumbing, there isn't any currently in that room, so you'll need to dig up the floor for drainage and almost definately that of either the utility or one of the bathrooms! I vote for keeping the house exactly as it is!...See More- 7 months ago
- 7 months ago
- 7 months ago
- 7 months ago
- 4 months ago

Sponsored
Reload the page to not see this specific ad anymore




Jonathan