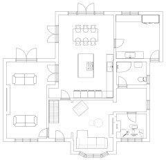
Hi! Looking for ideas for a low cost way to make this house fit the criteria of:
- spacious hallway
- downstairs loo off hallway
-boot room with outdoor access
- spacious kitchen diner
- 3 x spacious bedrooms, 2 with ensuites & guest room with ensuite
- 2nd living room/playroom
- study with built in storage
Been househunting for years and it’s between this and a period townhouse which offers all of the above (apart from 2 x ensuites) but the period house is £245k more expensive.
The project house is north facing, in an area we love, a very short distance from where we currently live and close to school, work, hobbies & friends. The period house is west facing and in a different area of town further from everything.
What would you do?!
tab darcy
Clare CoburnOriginal Author
Related Discussions
Help with my living room
Q
New kitchen, but just not working.
Q
Help me choose a bed for guest room
Q
Layout dilemma/ possible kitchen extension or remodel
Q
Jonathan
Clare CoburnOriginal Author